home page > Annunci immobiliari in Italia > Veneto > Treviso > Fontanelle > appartamenti in vendita > Scheda immobile

Appartamento in vendita a Fontanelle

COMPILA IL MODULO SOTTOSTANTE PER RICEVERE MAGGIORI INFORMAZIONI







Invia la richiesta ad altre agenzie
Accetto il trattamento dei miei dati



Asteaffari.com

Viale g. E l. Olivi 38
31100 Treviso

04221781118    Riferimenti: Stefano Dalto

Fontanelle
Prezzo: € 66.000
F
3
1
109
1



Descrizione:
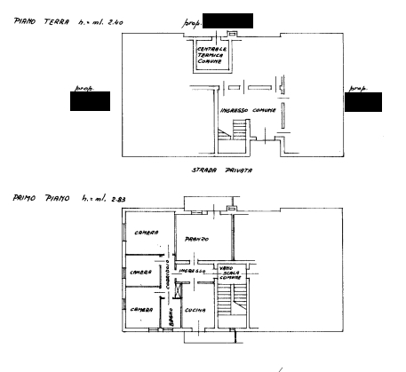
Rif. A.a.399-24vendesi all'asta - appartamento al 1° piano con garage in data 20 marzo 2026descrizione: trattasi di un appartamento ubicato al 1° piano di un edificio condominiale sito nel comune di fontanelle (tv) località lutrano. L'unità immobiliare, della superficie commerciale complessiva di mq.109, risulta composto da: piano primo zona giorno, accessibile dal portoncino d'ingresso del pianerottolo, formata da un disbrigo dal quale a sinistra si accede ad una sala dapranzo cucina, e a destra nel soggiorno. Proseguendo frontalmente si entra nel disbrigo della zona notte, con 3 camere. Nella zona notte trova posto un bagno. Dal soggiorno, come pure dalla cucina, si ha accesso ai balconi. Completano la proprietà una cantina ed un garage al piano terra. prezzo minimo: 66.000 euroaste-affari fornisce un servizio di assistenza e consulenza tecnica, legale, fiscale e finanziaria su acquisti all'asta e affari immobiliari, al fine di rendere più facile e sicuro l'acquisto di un immobile proveniente dal mercato giudiziario oppure da occasioni presenti sul mercato immobiliare.analisi di fattibilità, tecnica, burocratica, finanziaria, legale, esame problematiche e vincoli, conteggio costi accessori ed occulti, assistenza in tutte le fasi della procedura fino alla consegna delle chiavi dell'immobile.l'acquisto può essere finanziato tramite mutuo, e, ove possibile anche in pre-asta tramite procedura di saldo-stralcio.per info aggiuntive, prenotazione visione, consulenza ed assistenza su asta :studio di consulenza : 'aste-affari.com'info: un debitore ? chiamaci ! abbiamo soluzioni personalizzate anche per te.




Caratteristiche immobile:
Codice inserzione: 1770608860
Rif. Annuncio: A.A. 399-24
Provincia: Treviso
Comune: Fontanelle
Superficie (Mq) : 109 Mq.
Tipo immobile: Appartamento
Anno costruzione/ristrutturazione: 1977
Piano: 1
Camere: 3
Arredato:
Garage: Singolo
Tipologia giardino : Condominiale
Bagni: 1

Costi:
Prezzo € 66.000


Efficienza energetica:
Classe energetica: F
Riscaldamento: autonomo