home page > Annunci immobiliari in Italia > Veneto > Treviso > Trevignano > appartamenti in vendita > Scheda immobile

Appartamento in vendita a Trevignano

COMPILA IL MODULO SOTTOSTANTE PER RICEVERE MAGGIORI INFORMAZIONI







Invia la richiesta ad altre agenzie
Accetto il trattamento dei miei dati



Asteaffari.com

Viale g. E l. Olivi 38
31100 Treviso

04221781118    Riferimenti: Stefano Dalto

Trevignano
Prezzo: € 140.475
F
2
2
171
Piano terra



Descrizione:
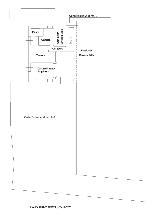
Rif. A.a.411-24vendita all'asta - abitazione al piano terra con giardino in data 03 febbraio 2026descrizione: trattasi di un abitazione ubicata al piano terra con giardino pertinenziale, facente parte di un edificio residenziale a due piani sito nel comune di trevignano (tv). L'unità immobiliare, della superficie commerciale complessiva di mq. 171, comprende il locale cucina-pranzo-soggiorno, il corridoio, due camere, due bagni, la corte esclusiva che si sviluppa su tre lati del fabbricato di superfici catastale pari a mq. 441. prezzo minimo base asta : da euro 140.475,00l'immobile viene venduto tramite asta giudiziaria, ed il prezzo indicato si riferisce al prezzo minimo accettato per la partecipazione all'asta.aste-affari fornisce un servizio di assistenza e consulenza tecnica, legale, fiscale e finanziaria su acquisti all'asta e affari immobiliari, al fine di rendere più facile e sicuro l'acquisto di un immobile proveniente dal mercato giudiziario oppure da occasioni presenti sul mercato immobiliare.analisi di fattibilità, tecnica, burocratica, finanziaria, legale, esame problematiche e vincoli, conteggio costi accessori ed occulti, assistenza in tutte le fasi della procedura fino alla consegna delle chiavi dell'immobile.l'acquisto può essere finanziato tramite mutuo, e, ove possibile anche in pre-asta tramite procedura di saldo-stralcio. per info aggiuntive, prenotazione visione, consulenza ed assistenza su asta : studio di consulenza : 'aste-affari.com' info: sei un debitore ? chiamaci ! abbiamo soluzioni personalizzate anche per te.




Caratteristiche immobile:
Codice inserzione: 1767586241
Rif. Annuncio: A.A. 411-24
Provincia: Treviso
Comune: Trevignano
Superficie (Mq) : 171 Mq.
Tipo immobile: Appartamento
Stato immobile: usato
Anno costruzione/ristrutturazione: 1967
Piano: Piano terra
Camere: 2
Arredato:
Garage: Singolo
Bagni: 2

Costi:
Prezzo € 140.475


Efficienza energetica:
Classe energetica: F
Riscaldamento: autonomo