home page > Annunci immobiliari in Italia > Veneto > Treviso > Pieve di Soligo > Case e ville indipendenti in vendita > Scheda immobile

Case e ville indipendenti in vendita a Pieve di Soligo

COMPILA IL MODULO SOTTOSTANTE PER RICEVERE MAGGIORI INFORMAZIONI







Invia la richiesta ad altre agenzie
Accetto il trattamento dei miei dati



Asteaffari.com

Viale g. E l. Olivi 38
31100 Treviso

04221781118    Riferimenti: Stefano Dalto

Pieve di Soligo
Prezzo: € 27.900
F
2
1
161
1



Descrizione:
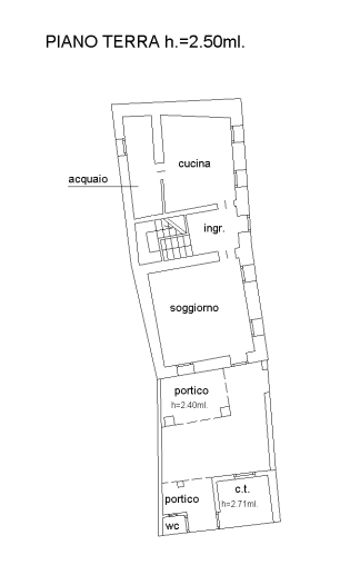
Rif. A.a.368-24vendita all'asta - abitazione su due livelli in data 08 aprile 2026descrizione immobili : trattasi di un'abitazione disposta su due livelli, sita nel comune di pieve di soligo (tv). Il distributivo interno è costruito al piano terra da acquaio con cucina, sottoscala (raggiungibile scendendo un gradino), ingresso, soggiorno e portico esterno, al piano primo disimpegno, due camere, ripostiglio e bagno. Superficie commerciale complessiva mq.161.l'immobile viene venduto tramite asta giudiziaria, ed il prezzo indicato si riferisce al prezzo minimo accettato per la partecipazione all'asta.aste-affari fornisce un servizio di assistenza e consulenza tecnica, legale, fiscale e finanziaria su acquisti all'asta e affari immobiliari, al fine di rendere più facile e sicuro l'acquisto di un immobile proveniente dal mercato giudiziario oppure da occasioni presenti sul mercato immobiliare.analisi di fattibilità, tecnica, burocratica, finanziaria, legale, esame problematiche e vincoli, conteggio costi accessori ed occulti, assistenza in tutte le fasi della procedura fino alla consegna delle chiavi dell'immobile.l'acquisto può essere finanziato tramite mutuo, e, ove possibile anche in pre-asta tramite procedura di saldo-stralcio.prezzo minimo base asta : da euro 27.900,00per info aggiuntive, prenotazione visione, consulenza ed assistenza su asta :studio di consulenza : 'aste-affari.com'info: un debitore ? chiamaci ! abbiamo soluzioni personalizzate anche per te.




Caratteristiche immobile:
Codice inserzione: 1771472289
Rif. Annuncio: A.A.368-24
Provincia: Treviso
Comune: Pieve di Soligo
Superficie (Mq) : 161 Mq.
Tipo immobile: Case e ville indipendenti
Stato immobile: usato da riattare
Anno costruzione/ristrutturazione: 1955
Piano: 1
Camere: 2
Bagni: 1

Costi:
Prezzo € 27.900


Efficienza energetica:
Classe energetica: F
Riscaldamento: autonomo