home page > Annunci immobiliari in Italia > Veneto > Treviso > Santa Lucia di Piave > Case e ville indipendenti in vendita > Scheda immobile

Case e ville indipendenti in vendita a Santa Lucia di Piave

COMPILA IL MODULO SOTTOSTANTE PER RICEVERE MAGGIORI INFORMAZIONI







Invia la richiesta ad altre agenzie
Accetto il trattamento dei miei dati



Asteaffari.com

Viale g. E l. Olivi 38
31100 Treviso

04221781118    Riferimenti: Stefano Dalto

Santa Lucia di Piave
Prezzo: € 90.000
F
3
2
279
1
1



Descrizione:
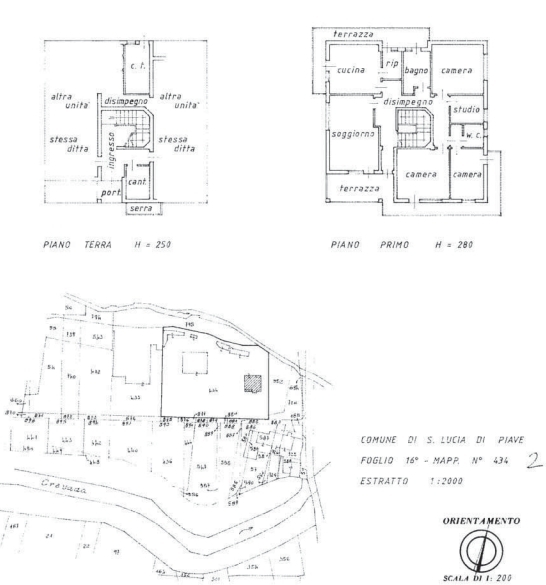
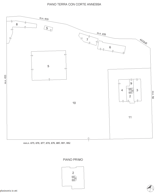
Rif. A.a.5-241 vendita all'asta - abitazione unifamiliare su 2 livelli in data 10 febbraio 2026descrizione: trattasi di un'unità immobiliare del tipo villino disposto su due livelli e sito in comune di santa lucia di piave (tv), località sarano, in via risorgimento n. 2 e precisamente: porzione ad uso abitazione ai piani terra e primo; altra porzione ad uso uffici con servizi e portico al piano terra; pertinenziali garage e centrale termica-corridoio al piano terra, nonché area scoperta esclusiva di mq. 835 catastali. Accesso pedonale esistente, accesso carrabile da definire prezzo minimo base asta : da euro 90.000,00l'immobile viene venduto tramite asta giudiziaria, ed il prezzo indicato si riferisce al prezzo minimo accettato per la partecipazione all'asta.aste-affari fornisce un servizio di assistenza e consulenza tecnica, legale, fiscale e finanziaria su acquisti all'asta e affari immobiliari, al fine di rendere più facile e sicuro l'acquisto di un immobile proveniente dal mercato giudiziario oppure da occasioni presenti sul mercato immobiliare.analisi di fattibilità, tecnica, burocratica, finanziaria, legale, esame problematiche e vincoli, conteggio costi accessori ed occulti, assistenza in tutte le fasi della procedura fino alla consegna delle chiavi dell'immobile.l'acquisto può essere finanziato tramite mutuo, e, ove possibile anche in pre-asta tramite procedura di saldo-stralcio. per info aggiuntive, prenotazione visione, consulenza ed assistenza su asta : studio di consulenza : 'aste-affari.com' info: sei un debitore ? chiamaci ! abbiamo soluzioni personalizzate anche per te.




Caratteristiche immobile:
Codice inserzione: 1767672676
Rif. Annuncio: A.A. 5-241
Provincia: Treviso
Comune: Santa Lucia di Piave
Zona: Sarano  
Superficie (Mq) : 279 Mq.
Tipo immobile: Case e ville indipendenti
Stato immobile: usato da riattare
Anno costruzione/ristrutturazione: 1969
Piano: 1
Camere: 3
Garage: Singolo
Posti auto scoperti: 1 posto auto
Bagni: 2 + lavanderia
Terrazze: 1

Costi:
Prezzo € 90.000


Efficienza energetica:
Classe energetica: F
Riscaldamento: autonomo