home page > Annunci immobiliari in Italia > Abruzzo > Teramo > Colonnella > Negozi uffici capannoni in vendita > Scheda immobile

Negozi uffici capannoni in vendita a Colonnella

COMPILA IL MODULO SOTTOSTANTE PER RICEVERE MAGGIORI INFORMAZIONI







Invia la richiesta ad altre agenzie
Accetto il trattamento dei miei dati



Quimmo agency

Via galileo galilei 6
48018 Faenza (RA)

0299944698

Colonnella
Prezzo: € 2.650.000
3
34110



Descrizione:
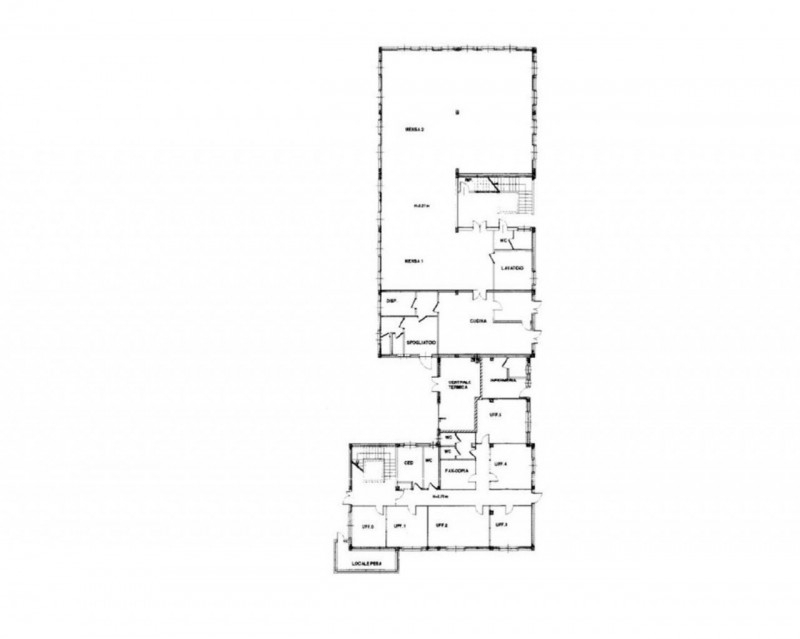
Proponiamo un importante complesso industriale situato in contrada vallecupa, all'interno della zona industriale valle cupa di colonnella (te). L'area si trova in posizione strategica, con accesso diretto dalla strada provinciale 1 e collegamenti rapidi allo svincolo del raccordo ascoliporto d'ascoli, che a sua volta conduce all'autostrada a14 presso lo svincolo di san benedetto del tronto, distante circa 5 km. La zona è inoltre servita da mezzi pubblici, con fermate autobus a circa 2 km e la stazione ferroviaria a circa 7 km.il complesso, realizzato negli anni '90, si estende su una superficie commerciale di circa 34.110 mq e comprende un grande capannone produttivo di circa 30.000 mq, caratterizzato da ampie aree di lavorazione, zone adibite a magazzino e varchi attrezzati per le attività di carico e scarico. A servizio dell'opificio si trovano anche tre manufatti precedentemente destinati allo stoccaggio di oli e gas combustibili.è presente una palazzina dedicata agli uffici e ai servizi, articolata su tre livelli fuori terra. Al piano terra e al primo piano si trovano tredici uffici, locali tecnici e servizi igienici, oltre a un ampio corpo destinato a mensa con cucina, dispensa, spogliatoi e infermeria. Al secondo piano è collocato un alloggio per il custode composto da soggiorno, cucina, camera da letto, due bagni, studio, ripostiglio e balcone coperto. Un ulteriore livello della palazzina, accessibile tramite scala esterna, ospita gli spogliatoi e i servizi igienici per il personale.all'interno del complesso sorgono inoltre un fabbricato destinato ai locali tecnologici (compressori, centrale elettrica, centrale termica e impianti idrici), un capannone per l'impianto di depurazione dotato di vasche, aree esterne e tettoie, una tettoia aperta per lo stoccaggio dei materiali, una cabina enel con area recintata e una cabina di comando e controllo.la proprietà dispone di un vasto piazzale asfaltato e completamente recintato, dotato di accessi carrabili sui due lati del lotto, che consente agevoli manovre anche per mezzi pesanti. La configurazione e l'ampiezza degli spazi rendono il complesso idoneo sia per attività produttive di medio-grandi dimensioni, sia per funzioni logistiche o di distribuzione.




Caratteristiche immobile:
Codice inserzione: 1764043238
Rif. Annuncio: 2537665
Provincia: Teramo
Comune: Colonnella
Superficie (Mq) : 34110 Mq.
Tipo immobile: Negozi uffici capannoni
Bagni: 3

Costi:
Prezzo € 2.650.000


Efficienza energetica: