home page > Annunci immobiliari in Italia > Basilicata > Potenza > Melfi > Negozi uffici capannoni in vendita > Scheda immobile

Negozi uffici capannoni in vendita a Melfi

COMPILA IL MODULO SOTTOSTANTE PER RICEVERE MAGGIORI INFORMAZIONI







Invia la richiesta ad altre agenzie
Accetto il trattamento dei miei dati



Immobili all'asta

Viale sabotino 4
20121 Milano

0280888267    Riferimenti: Ivano De Natale

Melfi
Prezzo: € 79.500
F
1
489



Descrizione:
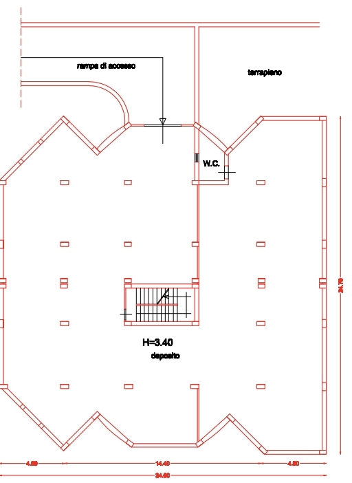
Deposito in via galileo ferraris, melfi (pz)si propone il diritto di piena proprietà di un'unità immobiliare ad uso commerciale sita in via galileo ferraris n 13, nel comune di melfi (pz). Nello specifico si tratta di un locale deposito sito al piano seminterrato, composto cosù:- composto da unico ampio vano, - oltre a un wcla superficie commerciale del deposito è di mq 489.dati catastali:- fg. 60 part. 965 sub. 3, cat. C/2, classe 1chi siamoimmobiliallasta.it aiuta le persone a comprare casa all'asta e migliorare la qualità della loro vita senza correre rischi, grazie ad una piattaforma specializzata in aste immobiliari sviluppata intorno alle vere esigenze di chi cerca casa all'asta e ad un team di 30 professionisti esperti dedicato, che ti guida passo passo in un acquisto sicuro e certificato da una tripla garanzia sull'immobile e sul servizio.a differenza delle agenzie troverai:+ varietà: gestiamo migliaia di immobili ogni mese+ tranquillità: tripla garanzia che ti tutela da ogni rischio sull'acquistoalcuni risultati oggettivi nell'ultimo anno e mezzo:- 8.600 immobili gestiti- +500 clienti portati all'asta- +200 case aggiudicate, per un valore totale di 15 milionicontattaci subito per parlare con uno dei nostri consulenti che ti aiuterà a trovare la tua casa all'asta senza correre rischi.




Caratteristiche immobile:
Codice inserzione: 1771299669
Rif. Annuncio: ST12482
Provincia: Potenza
Comune: Melfi
Superficie (Mq) : 489 Mq.
Tipo immobile: Negozi uffici capannoni
Stato immobile: usato
Anno costruzione/ristrutturazione: 1970
Bagni: 1

Costi:
Prezzo € 79.500


Efficienza energetica:
Classe energetica: F
Indice di prestazione energetica (EPgl): 175 kWh/mc annui