home page > Annunci immobiliari in Italia > Calabria > Cosenza > Montalto Uffugo > Case e ville indipendenti in vendita > Scheda immobile

Case e ville indipendenti in vendita a Montalto Uffugo

COMPILA IL MODULO SOTTOSTANTE PER RICEVERE MAGGIORI INFORMAZIONI







Invia la richiesta ad altre agenzie
Accetto il trattamento dei miei dati



Falcone immobiliare

Via benedetto croce 218
87046 Montalto Uffugo (CS)

0984939885

Montalto Uffugo
Prezzo: € 265.000
C
3
2
142
Piano terra



Descrizione:
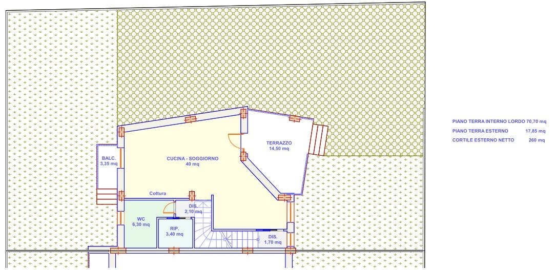
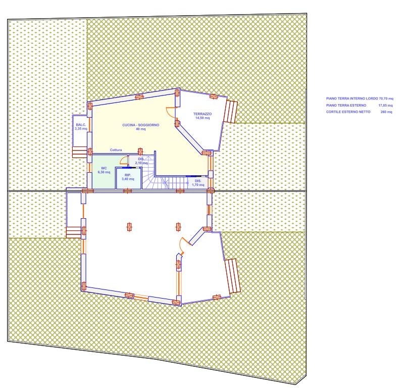
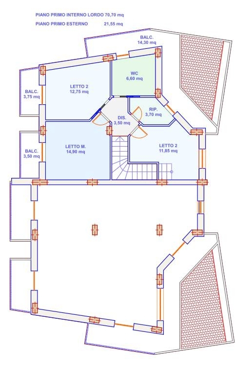
(prenotazione) in vendita a montalto uffugo, nella signorile zona di taverna, proponiamo una porzione di villa bifamiliare di nuova costruzione. L'immobile si sviluppa su due livelli per un totale di circa142 mq, con 71 mq al piano terra e 71 mq al primo piano. La villa è composta da 4 vani, 3 camere da letto e 2 bagni, con una cucina in angolo cottura e soggiorno open space. l'unità è caratterizzata da un ingresso indipendente e offre comfort moderni, tra cui riscaldamento autonomo. Al piano terra, troverete una terrazza di 15 mq, un balcone di 3 mq e un ampio giardino/riserva di 260 mq, perfetto per godere di momenti di relax all'aperto. Al primo piano, sono presenti tre balconi: uno di 14 mq e due da 4 mq ciascuno.la villa è classificata in classe energetica c, garantendo un buon livello di efficienza energetica. Questa soluzione è ideale per chi cerca una residenza spaziosa e confortevole in un contesto tranquillo e signorile. Non perdere l'opportunità di visitarla! ottimo capitolato con possibilità di personalizzazione. Alcune immagini sono rendering invirtual stagingrealizzati con ia per illustrare le potenzialità di arredo degli spazi e rappresentano solo delle ipotesi progettuali da affinare ed approfondire la cui reale e concreta fattibilità dovrà essere verifica da personale tecnico qualificato. le informazioni riportate sono puramente indicative e non costituiscono in alcun modo condizioni contrattualiper essere sempre aggiornati sulle nostre migliori proposte, sulle nostre attività e per avere tante utili informazioni sul mercato immobiliare e non solo vi invitiamo a visitare il sito o cliccare ' mi piace ' sulla nostra fanpage:https:// classe energetica: c




Caratteristiche immobile:
Codice inserzione: 1773981047
Rif. Annuncio: 8458RV28664
Provincia: Cosenza
Comune: Montalto Uffugo
Superficie (Mq) : 142 Mq.
Tipo immobile: Case e ville indipendenti
Stato immobile: nuovo
Piano: Piano terra
Camere: 3
Bagni: 2
Terrazze: 2

Costi:
Prezzo € 265.000


Efficienza energetica:
Classe energetica: C
Riscaldamento: autonomo