home page > Annunci immobiliari in Italia > Calabria > Cosenza > Rende > Negozi uffici capannoni in vendita > Scheda immobile

Negozi uffici capannoni in vendita a Rende

COMPILA IL MODULO SOTTOSTANTE PER RICEVERE MAGGIORI INFORMAZIONI







Invia la richiesta ad altre agenzie
Accetto il trattamento dei miei dati



Cosenzacase srls

Via caloprese 68
87100 Cosenza

0984401777(.orari.ufficio)

Rende
Prezzo: € 390.000
3
140
99



Descrizione:
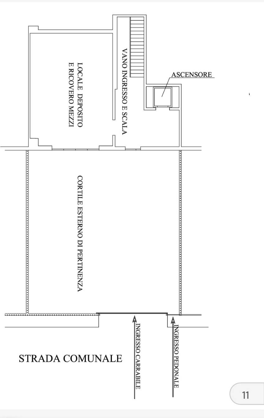
Capannore di di mq 680 di cui mq 90 al piano terra e 590 al primo piano con ascensore portata 12 persone, situato a rende nella zona zona industriale c/da lecco, si precisa che l'immobile, già accreditata presso la regione calabria per lo svolgimento di corsi professionali, si compone:a) ingresso autonomo con corte privata, atrio con ascensore portata 12 persone;b) n° 6 locali al primo piano;c) n° 2 vani destinati ad uffici al primo piano;d) n° 1 archivio;e) n° 3 bagni al piano primo ( n° 1 bagno disabili, n° 1 bagno donne e n° 1 bagni maschi);f) n° 1 ampio locale a piano terra;g) possibilità di realizzazione impianto fotovoltaico da 100kw su copertura di proprietà esclusiva per indipendenza energetica.i locali sono dotati di impianto antincendio con rilevatore di fumi, impianto di videosorveglianza ed antintrusione, impianto di riscaldamento caldo/freddo, impianto elettrico ed idrico, tutti dotati di certificazione di conformità.prezzo 390000,00 europer maggiori informazioni agenzia immobiliare cosenzacase via caloprese n. 68 tel oppure sito: e-mail: classe energetica: non indicata




Caratteristiche immobile:
Codice inserzione: 1769481055
Rif. Annuncio: 525UU97642
Provincia: Cosenza
Comune: Rende
Superficie (Mq) : 140 Mq.
Tipo immobile: Negozi uffici capannoni
Stato immobile: usato
Piano: Ultimo piano
Bagni: 3

Costi:
Prezzo € 390.000


Efficienza energetica:
Riscaldamento: autonomo