08117804305
 170
						
						170					
						
						Descrizione:
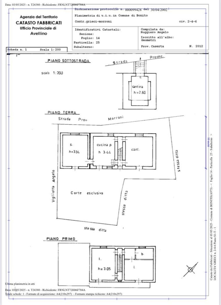
Via grieci snc -bonito(av)palazzina su due livelli di mq 170 in ottimo stato interno + mq 140 di terrazzo di copertura e mq 5000 di terrenotrattativa riservata					
| Codice inserzione: | 1760917294 | 
| Rif. Annuncio: | Cod. rif 3224827VRG | 
| Provincia: | Avellino | 
| Comune: | Bonito | 
| Superficie (Mq) : | 170 Mq. | 
| Tipo immobile: | Case e ville indipendenti | 
| Prezzo | info in agenzia |