home page > Annunci immobiliari in Italia > Campania > Napoli > San Paolo Bel Sito > Negozi uffici capannoni in vendita > Scheda immobile

Negozi uffici capannoni in vendita a San Paolo Bel Sito

COMPILA IL MODULO SOTTOSTANTE PER RICEVERE MAGGIORI INFORMAZIONI







Invia la richiesta ad altre agenzie
Accetto il trattamento dei miei dati



Consulting immobiliare

Via roma 49
80040 San Gennaro Vesuviano (NA)

0815287590

San Paolo Bel Sito
Prezzo: € 250.000
F
190



Descrizione:
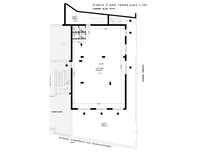
vendesi locale commerciale situato al confine tra nola e san paolo bel sito (a breve distanza dalla nuova sede dell'università!!!)questa proprietà rappresenta un'opportunità imperdibile per investitori e imprenditori che desiderano una posizione strategica in una zona in rapida crescita.al piano interrato, troverai un locale deposito/garage di circa 200 mq, perfetto per lo stoccaggio o altre esigenze logistiche.il piano terra ospita un locale commerciale di circa 180 mq, dotato di quattro vetrine che garantiscono massima visibilità. completo di bagni, antibagno e ulteriore deposito, questo spazio à ideale per attività commerciali o ufficio o altro.non perdere questa occasione unica di investimento!contattaci ora per ulteriori dettagli e per prenotare una visita:tel oppure whatsapp




Caratteristiche immobile:
Codice inserzione: 1760380115
Rif. Annuncio: 1832186
Provincia: Napoli
Comune: San Paolo Bel Sito
Superficie (Mq) : 190 Mq.
Tipo immobile: Negozi uffici capannoni
Anno costruzione/ristrutturazione: 2006

Costi:
Prezzo € 250.000


Efficienza energetica:
Classe energetica: F
Indice di prestazione energetica (EPgl): 3.51 kWh/mc annui