home page > Annunci immobiliari in Italia > Emilia-Romagna > Forlì-Cesena > Forlì > Negozi uffici capannoni in vendita > Scheda immobile

Negozi uffici capannoni in vendita a Forlì

COMPILA IL MODULO SOTTOSTANTE PER RICEVERE MAGGIORI INFORMAZIONI







Invia la richiesta ad altre agenzie
Accetto il trattamento dei miei dati



Quimmo agency

Via galileo galilei 6
48018 Faenza (RA)

0299944698

Forlì
Prezzo: € 1.380.000
C
2
880



Descrizione:
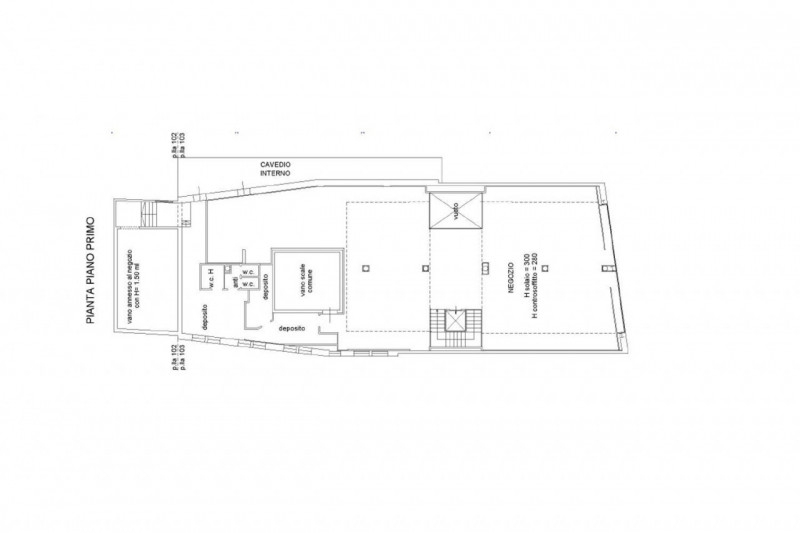
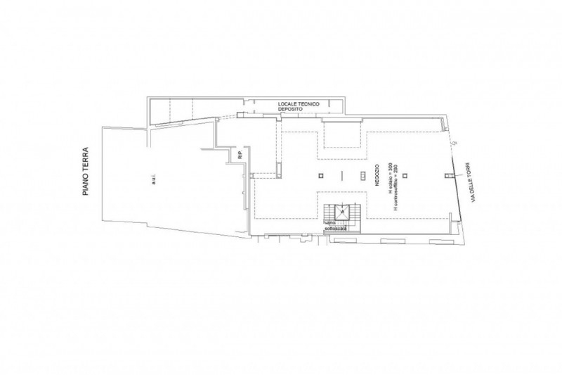
Nel centro storico di forlù in una delle vie più rinomate a livello commerciale proponiamo in vendita un locale commerciale sviluppato su tre livelli (terra, primo e secondo), collegati internamente da ascensore e vano scala. L'immobile presenta ampie vetrate sia al piano terra che al piano primo che garantiscono ottima visibilità da via delle torri.internamente presenta una suddivisione degli ambienti ottimizzata per l'attività in essere con area vendita servizi e magazzini.il locale al momento risulta locato ad un tenant di primaria importanza il quale garantisce un ottimo investimento da mettere a reddito.superficie commerciale: 880 mqclasse energetica 'c'indice di prestazione energetica 236,67 kwh/mq anno.




Caratteristiche immobile:
Codice inserzione: 1764130077
Rif. Annuncio: 24661
Provincia: Forlì-Cesena
Comune: Forlì
Superficie (Mq) : 880 Mq.
Tipo immobile: Negozi uffici capannoni
Stato immobile: usato
Bagni: 2

Costi:
Prezzo € 1.380.000


Efficienza energetica:
Classe energetica: C
Riscaldamento: autonomo