home page > Annunci immobiliari in Italia > Emilia-Romagna > Modena > Castelvetro di Modena > Case e ville a schiera in vendita > Scheda immobile

Case e ville a schiera in vendita a Castelvetro di Modena

COMPILA IL MODULO SOTTOSTANTE PER RICEVERE MAGGIORI INFORMAZIONI







Invia la richiesta ad altre agenzie
Accetto il trattamento dei miei dati



Homes? real estate s.r.l.

l.go giambellino, /b 4
42121 Reggio nell'Emilia

3319996474    3898322490    Riferimenti: Teodoro Laganà

Castelvetro di Modena
Prezzo: € 138.750
124



Descrizione:
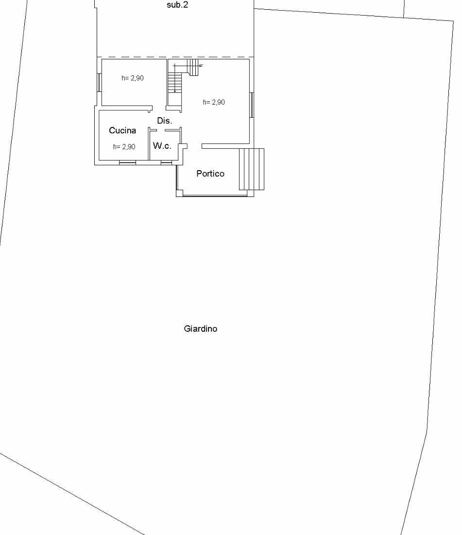
Rif: asta mo 008 - comune di castelvetro di modena, frazione di puianello, via del santuario n.2/c porzione di fabbricato distribuito ai piani terra e primo con annessa area cortiliva data sta 11 dicembre 2025consulenza specializzata e assistenza a 360° per un acquisto in asta sicuro e trasparente.i nostri professionisti offrono i seguenti servizi:-ricerca immobili ed invio proposte personalizzate in base alle esigenze del cliente-visita immobile-consulenza finanziaria-esame della perizia e della ulteriore documentazione-assistenza tecnicaanalisi dei costi-assistenza in partecipazione e deposito delle offerte-assistenza post aggiudicazione fino a consegna chiaviper ulteriori informazioni e per fissare una visita chiama il anna rita




Caratteristiche immobile:
Codice inserzione: 1763344559
Rif. Annuncio: 1357632/1668/ASTA MO 008
Provincia: Modena
Comune: Castelvetro di Modena
Superficie (Mq) : 124 Mq.
Tipo immobile: Case e ville a schiera
Stato immobile: usato da riattare

Costi:
Prezzo € 138.750


Efficienza energetica: