home page > Annunci immobiliari in Italia > Emilia-Romagna > Modena > Nonantola > Case e ville a schiera in vendita > Scheda immobile

Case e ville a schiera in vendita a Nonantola

COMPILA IL MODULO SOTTOSTANTE PER RICEVERE MAGGIORI INFORMAZIONI







Invia la richiesta ad altre agenzie
Accetto il trattamento dei miei dati



Homes? real estate s.r.l.

l.go giambellino, /b 4
42121 Reggio nell'Emilia

3319996474    3898322490    Riferimenti: Teodoro Laganà

Nonantola
Prezzo: € 223.400
2
140



Descrizione:
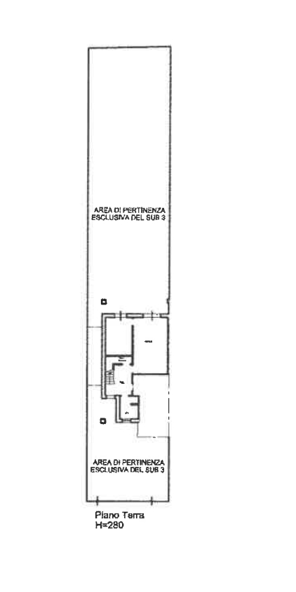
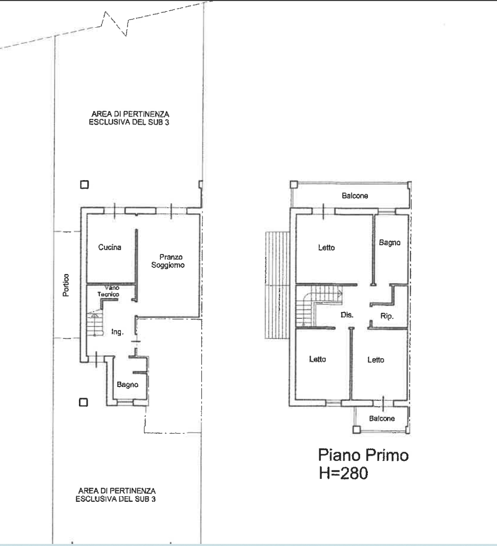
Rif: asta mo 009 - nonantola, via camillo benso di cavour n.5, villetta a schiera con autorimessa ed antistante e retrostante area cortiliva esclusiva composta da piano terra zona giorno composta da ingresso, cucina-soggiorno-pranzo, bagno, vano tecnico, scala esclusiva, portico, area cortiliva esclusiva, piano primo composto da disimpegno, tre camere da letto, un bagno, un ripostiglio, due baconi, data asta 9 dicembre 2025 consulenza specializzata e assistenza a 360° per un acquisto in asta sicuro e trasparente.i nostri professionisti offrono i seguenti servizi:-ricerca immobili ed invio proposte personalizzate in base alle esigenze del cliente-visita immobile-consulenza finanziaria-esame della perizia e della ulteriore documentazione-assistenza tecnicaanalisi dei costi-assistenza in partecipazione e deposito delle offerte-assistenza post aggiudicazione fino a consegna chiaviper ulteriori informazioni e per fissare una visita chiama il anna rita




Caratteristiche immobile:
Codice inserzione: 1763344557
Rif. Annuncio: 1357634/1668/ASTA MO 009
Provincia: Modena
Comune: Nonantola
Superficie (Mq) : 140 Mq.
Tipo immobile: Case e ville a schiera
Stato immobile: recente
Bagni: 2

Costi:
Prezzo € 223.400


Efficienza energetica: