3311787812 Riferimenti: Alessandro Tondo
Descrizione:
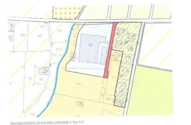
Rif: terreno02 - realizzare casa propone in esclusiva terreno edificabile da urbanizzare a quattro castella terreno edif. Residenziale in vendita - rif. Terreno02.terreno di 10000 di s.f e da 3000/4000 di s.c. Trattativa, si valuta permuta parizale riservata per qualsiasi info contattare giovanni de vietro
| Codice inserzione: | 1762739661 |
| Rif. Annuncio: | 1360185/2030/terreno02 |
| Provincia: | Reggio nell'Emilia |
| Comune: | Quattro Castella |
| Superficie (Mq) : | 1 Mq. |
| Tipo immobile: | Terreni |
| Prezzo | € 1.000 |