home page > Annunci immobiliari in Italia > Friuli-Venezia Giulia > Udine > Cavazzo Carnico > Case e ville a schiera in vendita > Scheda immobile

Case e ville a schiera in vendita a Cavazzo Carnico

COMPILA IL MODULO SOTTOSTANTE PER RICEVERE MAGGIORI INFORMAZIONI







Invia la richiesta ad altre agenzie
Accetto il trattamento dei miei dati



Cienne

Via martiri della libertà, 26
31046 Oderzo (TV)

0422815891    0422.815891    347.2460877

Cavazzo Carnico
Prezzo: € 92.000
3
226



Descrizione:
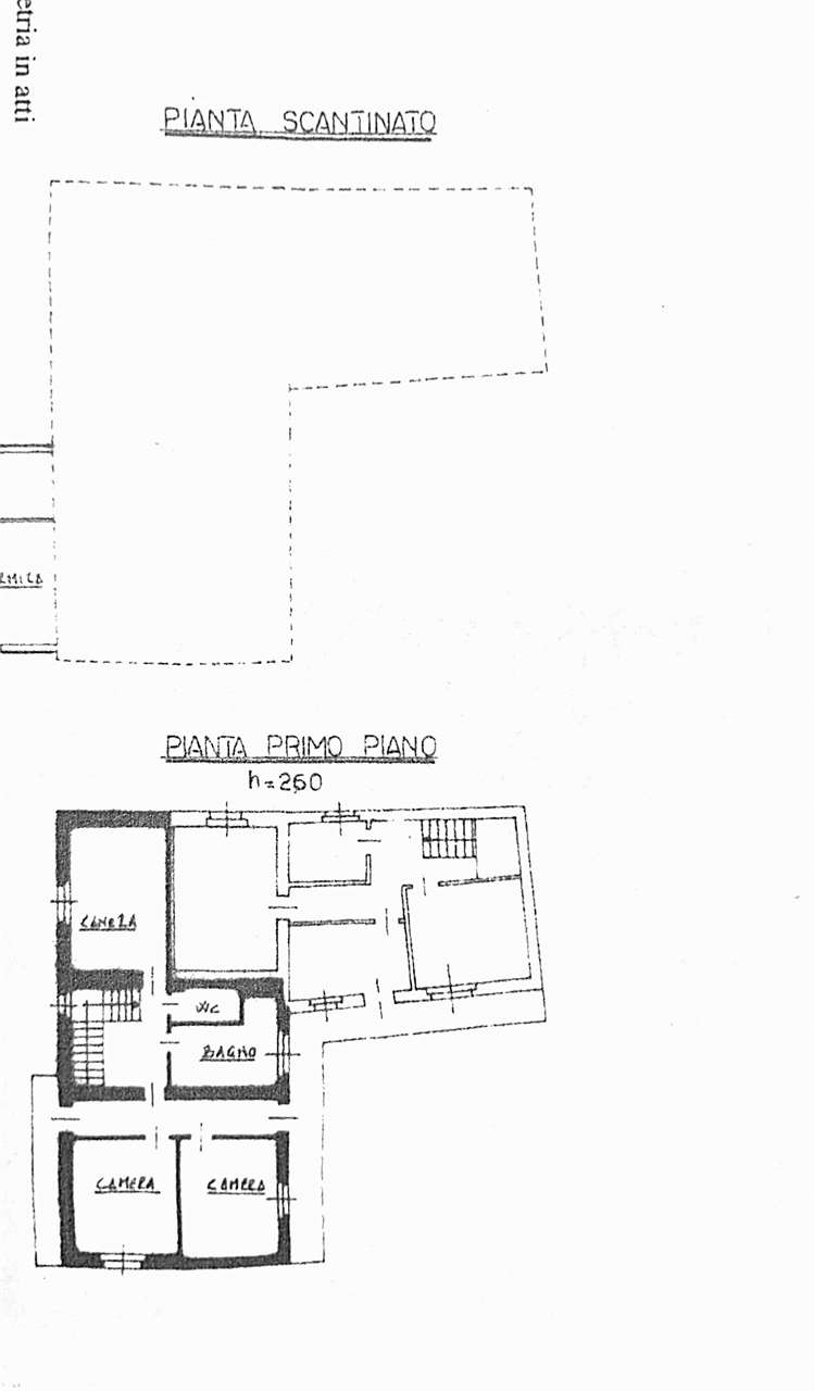
🏡 porzione di casa nelle alpi carniche cavazzo carnico, cesclansin posizione panoramica e tranquilla, nel cuore delle alpi carniche, proponiamo porzione di casa degli anni '70, ottimamente mantenuta nel tempo, perfetta per chi cerca una residenza immersa nella natura, ma a pochi passi dai principali servizi." caratteristiche principali:superficie di 220 mq disposti su scantinato, due livelli abitativi, e un piano sottotetto,3 camere doppie spaziose e luminose2 bagni funzionali2 terrazzi che percorrono la facciata della casa, ideali per godersi la vista panoramicasalotto e cucina separati per una comoda zona giornogiardino comune di 400 mq, perfetto per attività all'aperto e relax'° prezzo richiesto: 92.000€"... l'immobile necessita del ripristino dell'impianto, ma rappresenta una magnifica opportunità per chi desidera personalizzare la propria abitazione in un contesto montano esclusivo.🌲 posizione ideale per gli amanti della montagna, a pochi passi dalle meraviglie naturali delle alpi carniche e dal lago di cavazzo, ma a pochi minuti dai servizi di cavazzo carnico.contattaci per maggiori dettagli o per fissare una visita!agenzia immobiliare cienne snc oderzo (treviso)- piancavallo- aviano (pn) tel altre nostre proposte su: noi la vendita del vostro immobile si perfezionera' in tempi brevissimi, non aspettate a contattarci al n Affrettatevi!i mutui più vantaggiosi del mercato per convenienza e flessibilità. Fino al 100% del valore dell'immobile.classe energetica: in fase di valutazione




Caratteristiche immobile:
Codice inserzione: 1765325497
Rif. Annuncio: CARNIAporzione92
Provincia: Udine
Comune: Cavazzo Carnico
Superficie (Mq) : 226 Mq.
Tipo immobile: Case e ville a schiera
Camere: 3

Costi:
Prezzo € 92.000


Efficienza energetica: