home page > Annunci immobiliari in Italia > Friuli-Venezia Giulia > Udine > Remanzacco > Negozi uffici capannoni in vendita > Scheda immobile

Negozi uffici capannoni in vendita a Remanzacco

COMPILA IL MODULO SOTTOSTANTE PER RICEVERE MAGGIORI INFORMAZIONI







Invia la richiesta ad altre agenzie
Accetto il trattamento dei miei dati



Immobigo srl

Via nazionale
33010 Tavagnacco (UD)

04321598035    Riferimenti: Luca Sartori

Remanzacco
Prezzo: € 500.000
3900



Descrizione:
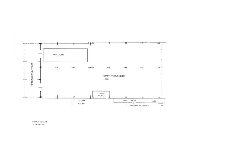
Capannone industriale in vendita a remanzacco, zona industriale b, con destinazione catastale d/7, avente superficie interna di 2600mq e un'ampia area esterna di circa 2000mq completamente recintata, dotata di cancello automatizzato. La struttura presenta un'altezza totale di 7 metri e altezza utile sottotrave di 5,20 metri con prediposizione linee per carroponte già presenti, risultando adatta per attività produttive, industriali e logistiche, inclusa movimentazione mezzi pesanti. Anno di costruzione 1993.l'immobile si trova in eccellenti condizioni generali, è attualmente soggetto a interventi di sistemazione interna e offre la possibilità di personalizzare e riorganizzazione degli spazi e delle aree destinate alla produzione. Tra le dotazioni tecniche principali si evidenziano: impianto di illuminazione led, anello antincendio con certificato cpi per rischio incendio massimo, impianti completamente a norma, copertura in ottimo stato manutentivo e predisposizione per la creazione di uffici anche su due livelli e area attrezzata per la ricarica di muletti elettrici e compressori.l'accesso diretto è garantito da due portoni industriali di grandi dimensioni (4,60mt di larghezza per 4,50mt di altezza), ideali per operazioni di carico e scarico merci su copertura di oltre 400mq. All'esterno si trovano aree di parcheggio interne e ampi spazi di manovra per mezzi industriali e autoarticolati per oltre 2000mq.l'immobile è sottoposto a verifica per l'attestato di prestazione energetica come previsto dal decreto legislativo 192/2005 e dpr 412/93.la disponibilità dell'immobile è immediata, con acquisto diretto da società con applicazione iva a norma di legge o possibilità di reverse charge. Classe energetica = in attesa




Caratteristiche immobile:
Codice inserzione: 1765323428
Rif. Annuncio: 0147_1091792
Provincia: Udine
Comune: Remanzacco
Superficie (Mq) : 3900 Mq.
Tipo immobile: Negozi uffici capannoni

Costi:
Prezzo € 500.000


Efficienza energetica: