home page > Annunci immobiliari in Italia > Friuli-Venezia Giulia > Udine > San Daniele del Friuli > Case e ville indipendenti in vendita > Scheda immobile

Case e ville indipendenti in vendita a San Daniele del Friuli

COMPILA IL MODULO SOTTOSTANTE PER RICEVERE MAGGIORI INFORMAZIONI







Invia la richiesta ad altre agenzie
Accetto il trattamento dei miei dati



Immobigo srl

Via nazionale
33010 Tavagnacco (UD)

04321598035    Riferimenti: Luca Sartori

San Daniele del Friuli
Prezzo: € 42.000
G
531



Descrizione:
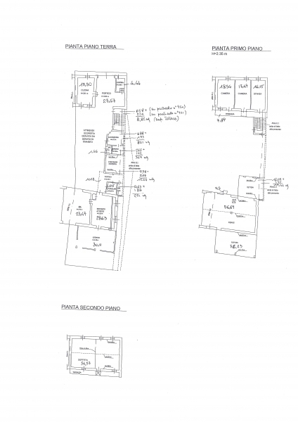
Corte rustica con terreno edificabile a pochi minuti dal centro di san daniele del friuli, nella tranquilla frazione di villanova, proponiamo in vendita una suggestiva corte interamente da ristrutturare, immersa nel verde e con accesso diretto dalla strada. L'immobile si compone di più fabbricati disposti attorno a un'ampia area centrale e gode di uno scoperto privato di circa 1400mq. La superficie coperta complessiva è di 384mq con possibilità edificatoria fino a 1150 mc, ampliabili mediante presentazione di un progetto urbanistico conforme.le pareti in pietra e le travature originali, ancora in buono stato, costituiscono un prezioso elemento di recupero sia per una riqualificazione del compendio esistente, sia per un eventuale nuovo intervento edilizio. Il corpo centrale con portone d'ingresso permette l'accesso carrabile all'interno della corte, ideale per realizzare un parcheggio riservato a più unità abitative.questa soluzione si presta perfettamente a chi desidera una proprietà indipendente con ampi spazi esterni e privacy totale, oppure a imprese edili e developer alla ricerca di un'opportunità di sviluppo residenziale. Il volume disponibile consente la realizzazione fino a 3-6 appartamenti da circa 100 m, ciascuno con posto auto interno e vista sul verde.ottimo investimento anche per chi intende conservare e valorizzare gli elementi storici dell'edificio, come i muri in sasso e le travi antiche, riutilizzabili in altri progetti architettonici dal forte impatto estetico e tradizionale.caratteristiche: travi in legno recuperabili, pareti in sasso a vista, infissi in legno con vetro singolo, allacciamento alla rete fognaria comunale, esposizione solare nord/sud ottimale, completamemnte da ristrutturaremetratura: rustico 380mq (oltre circa 200mq di immobile collabente su cui è possibile recuperare circa 600mc ), corte interna 150mq, portico 27mq, giardino 1440mq, lotto 2000mqclasse energetica: g classe energetica = g




Caratteristiche immobile:
Codice inserzione: 1765323358
Rif. Annuncio: 0077_1091692
Provincia: Udine
Comune: San Daniele del Friuli
Superficie (Mq) : 531 Mq.
Tipo immobile: Case e ville indipendenti

Costi:
Prezzo € 42.000


Efficienza energetica:
Classe energetica: G