04321598035 Riferimenti: Luca Sartori
Descrizione:
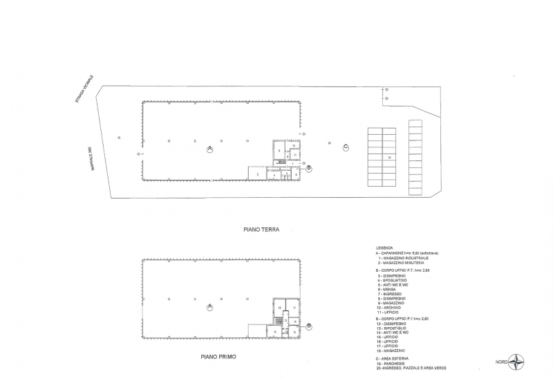
Capannone industriale/artigianale con 3 carroponti da 5t (2 omis e 1 bonfanti), inserito in un lotto di 5.500mq completamente recintato, con ampia area di manovra per la logistica e la movimentazione dei bilici. Il capannone misura 1.630mq ed è dotato di due portoni automatizzati fronte/retro (4,6mq x 4,5mq ). Al suo interno troviamo gli uffici disposti su due livelli, in perfette condizioni: piano terra: uffici, archivio, magazzino, spogliatoi, mensa e servizi. Piano primo: presidenza, due uffici indipendenti, archivio, sala riunioni e servizi.caratteristiche: ottimamente manutenzionato, impianti a norma, accesso per bilici, 3 carroponti da 5 t, uffici climatizzati, sala server, spogliatoi per il personale, allarme volumetrico e perimetrale, videosorveglianza, cancelli automatizzati. Lotto completamente recintato.metrature: capannone 1.630mq; uffici pt 106mq; uffici p1 174mq; 11 posti auto scoperti 154mq; 19 posti auto coperti 266mq, area di manovra 1700mq, lotto recintato 5500mq classe energetica = in attesa
| Codice inserzione: | 1765323489 |
| Rif. Annuncio: | 0175 |
| Provincia: | Udine |
| Comune: | Tavagnacco |
| Superficie (Mq) : | 1630 Mq. |
| Tipo immobile: | Negozi uffici capannoni |
| Prezzo | € 1.250.000 |