home page > Annunci immobiliari in Italia > Lazio > Roma > Civitella San Paolo > appartamenti in vendita > Scheda immobile

Appartamento in vendita a Civitella San Paolo

COMPILA IL MODULO SOTTOSTANTE PER RICEVERE MAGGIORI INFORMAZIONI







Invia la richiesta ad altre agenzie
Accetto il trattamento dei miei dati



Immobili all'asta

Viale sabotino 4
20121 Milano

0280888267    Riferimenti: Ivano De Natale

Civitella San Paolo
Prezzo: € 44.250
F
1
1
80
3



Descrizione:
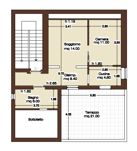
Appartamento all'asta in via cardetta, c. San paolo (rm)si propone il diritto di piena proprietà su immobile ad uso residenziale sito in via cardetta n. 6, nel comune di civitella san paolo (rm).nello specifico si tratta di un appartamento al piano terzo, composto da:- soggiorno/ angolo cottura- camera da letto- bagno.accessori- terrazzo.l'unità risulta avere una superficie di circa 80mq.dati catastalil'unità immobiliare risulta identificata al catasto fabbricati come segue:fg . 10, part. 509, sub. 501, categoria a/2, classe 2, consistenza 3,5 vani, sup. Catastale 71mq., rendita cat. €316,33.chi siamoimmobiliallasta.it aiuta le persone a comprare casa all'asta e migliorare la qualità della loro vita senza correre rischi, grazie ad una piattaforma specializzata in aste immobiliari sviluppata intorno alle vere esigenze di chi cerca casa all'asta e ad un team di 30 professionisti esperti dedicato, che ti guida passo passo in un acquisto sicuro e certificato da una tripla garanzia sull'immobile e sul servizio.a differenza delle agenzie troverai:+ varietà: gestiamo migliaia di immobili ogni mese+ tranquillità: tripla garanzia che ti tutela da ogni rischio sull'acquistoalcuni risultati oggettivi nell'ultimo anno e mezzo:- 8.600 immobili gestiti- +500 clienti portati all'asta- +200 case aggiudicate, per un valore totale di 15 milionicontattaci subito per parlare con uno dei nostri consulenti che ti aiuterà a trovare la tua casa all'asta senza correre rischi.




Caratteristiche immobile:
Codice inserzione: 1763438077
Rif. Annuncio: ST12256
Provincia: Roma
Comune: Civitella San Paolo
Superficie (Mq) : 80 Mq.
Tipo immobile: Appartamento
Stato immobile: usato
Anno costruzione/ristrutturazione: 1960
Piano: 3
Camere: 1
Bagni: 1
Terrazze: 1

Costi:
Prezzo € 44.250


Efficienza energetica:
Classe energetica: F
Indice di prestazione energetica (EPgl): 175 kWh/mq annui