home page > Annunci immobiliari in Italia > Liguria > La Spezia > Santo Stefano di Magra > appartamenti in vendita > Scheda immobile

Appartamento in vendita a Santo Stefano di Magra

COMPILA IL MODULO SOTTOSTANTE PER RICEVERE MAGGIORI INFORMAZIONI







Invia la richiesta ad altre agenzie
Accetto il trattamento dei miei dati



Immobiliare castagna

Via s. Benacci , 1
19038 Sarzana (SP)

01871861038    0187/1861038    345/0456838    Riferimenti: fabio

Santo Stefano di Magra
Prezzo: € 275.000
E
3
135



Descrizione:
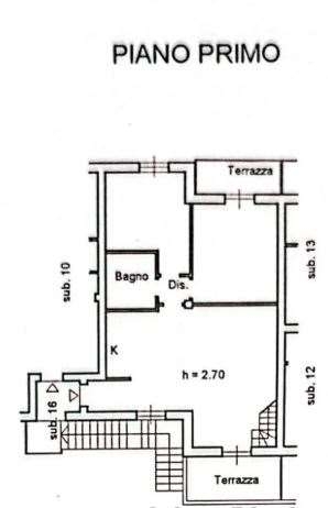
A ponzano madonnetta, in zona tranquilla e comoda ai servizi, proponiamo appartamento su due livelli di 135 mq, situato al primo e ultimo di una palazzina costruita nel 2012.al primo livello troviamo una luminosa zona living open space con accesso a terrazza vivibile, studio (o quarta camera) con balcone, cabina armadi/lavanderia e bagno finestrato con doccia.al piano superiore si sviluppa la zona notte con tre camere da letto e secondo bagno finestrato.l'immobile è in ottime condizioni e dotato di infissi pvc in doppio vetro e riscaldamento autonomonessuna spesa condominiale ordinariacompleta la proprietà un posto auto scoperto in area condominiale.soluzione ideale per famiglie che cercano spazi comodi, indipendenza e tranquillità, a pochi minuti da tutti i principali servizi.si avvertono i signori clienti che gli indirizzi sono puramente indicativi, ciò vuole essere un ausilio nell'individuazione della zona pur rispettando la privacy dei venditori. Le informazioni sono accurate, tuttavia potrebbero includere errori o imprecisioni, pertanto la descrizione non ha valore contrattuale ma solo informativo.classe energetica: e 194,22 kwh/m2 a




Caratteristiche immobile:
Codice inserzione: 1772064649
Rif. Annuncio: FD131
Provincia: La Spezia
Comune: Santo Stefano di Magra
Superficie (Mq) : 135 Mq.
Tipo immobile: Appartamento
Camere: 3

Costi:
Prezzo € 275.000


Efficienza energetica:
Classe energetica: E
Indice di prestazione energetica (EPgl): 194.22 kWh/mq annui