home page > Annunci immobiliari in Italia > Lombardia > Bergamo > Arcene > Case e ville a schiera in vendita > Scheda immobile

Case e ville a schiera in vendita a Arcene

COMPILA IL MODULO SOTTOSTANTE PER RICEVERE MAGGIORI INFORMAZIONI







Invia la richiesta ad altre agenzie
Accetto il trattamento dei miei dati



Consulenze casa

Via s.f. Neri
24059 Urgnano (BG)

34789.15.337    3478915337    Riferimenti: Roberto Radici

Arcene
Prezzo: € 398.000
2
142



Descrizione:
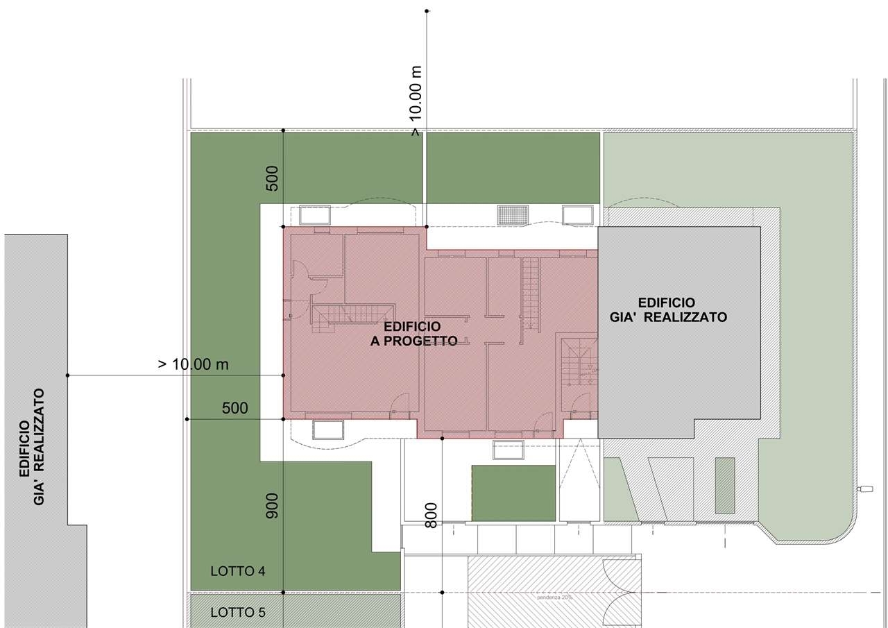
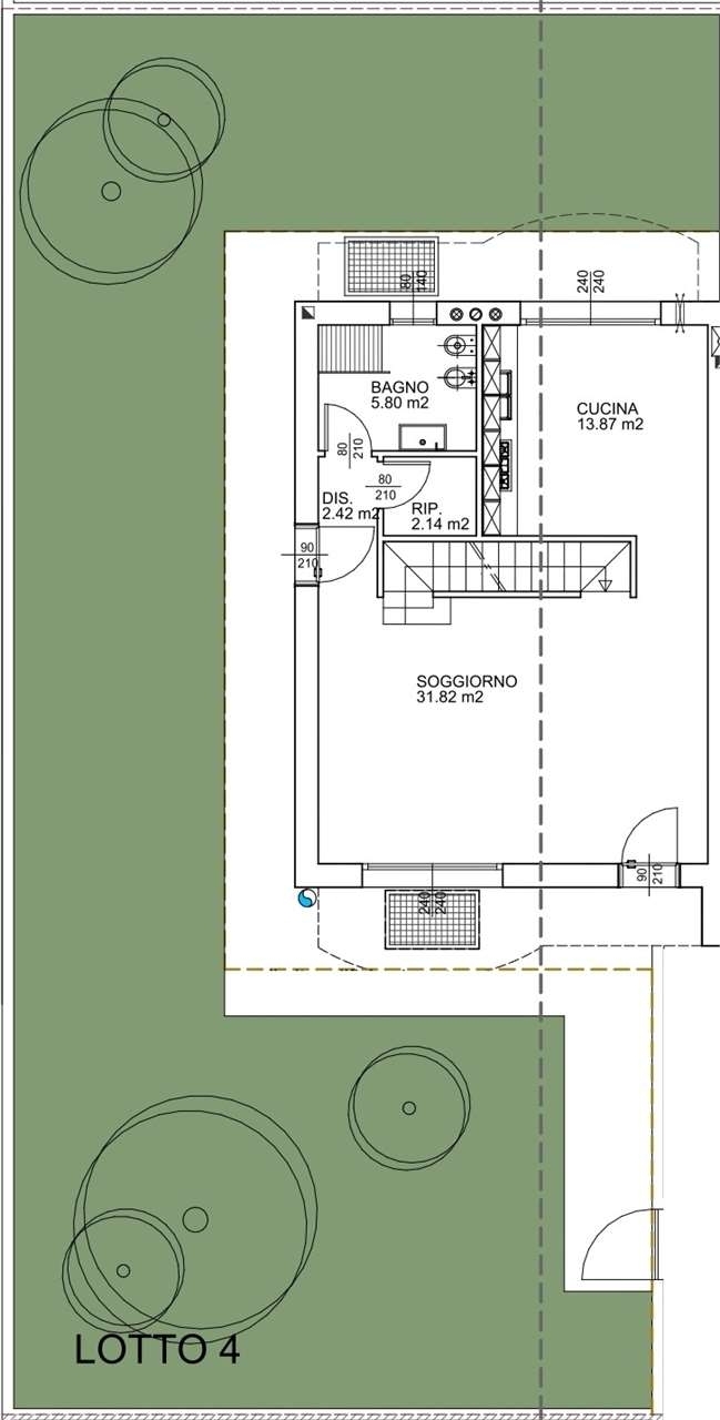
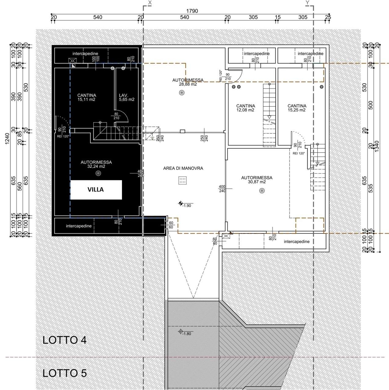
In nuovo riservato contesto residenziale di sole 3 unità immobiliari (2 appartamenti + 1 villa di testa), si propone villa libera sui 3 lati sud/ovest/est da circa 142mq (71mq per piano) su 2 livelli + interrato.ingresso pedonale indipendente con accesso da giardino perimetrale da circa 170mq. piano terra: soggiorno con cucina separata per un totale di ben 46mq calpestabili, disimpegno bagno e ripostiglio.piano primo: 3 ampie camere da letto, disimpegno e bagno.piano interrato: cantina da 23mq, box da 35mq, intercapedini da 17mq.la villa ha elevati parametri costruttivi per raggiungere la certificazione minimo in a2/3 (valore di progetto) prevedendo la struttura portante in cemento armato, tamponamenti in poroton del 20, cappotto 14cm, pannelli lana di roccia 5cm interposti fra i tamponamenti esterni ed i tavolati doppia lastra cartongesso 1,2cm+1,2cm, divisori interni con doppia lastra cartongesso ed interposta lana di roccia, serramenti basso emissivo in pvc con tapparelle in alluminio motorizzate, impianto di riscaldamento a pavimento con pompa di calore e predisposizione split idronici per il raffrescamento, impianto vmc (ventilazione meccanica controllata), impianto fotovoltaico 4,5kw, predisposizione antifurto, portone sezionale box coibentato e motorizzato, etc. prezzo 398.000€ (circa 200mq commerciali parzializzati).classe energetica:




Caratteristiche immobile:
Codice inserzione: 1769127087
Rif. Annuncio: V001311
Provincia: Bergamo
Comune: Arcene
Superficie (Mq) : 142 Mq.
Tipo immobile: Case e ville a schiera
Camere: 2

Costi:
Prezzo € 398.000


Efficienza energetica: