035.4220053 Riferimenti: Leda Casteletti
Descrizione:
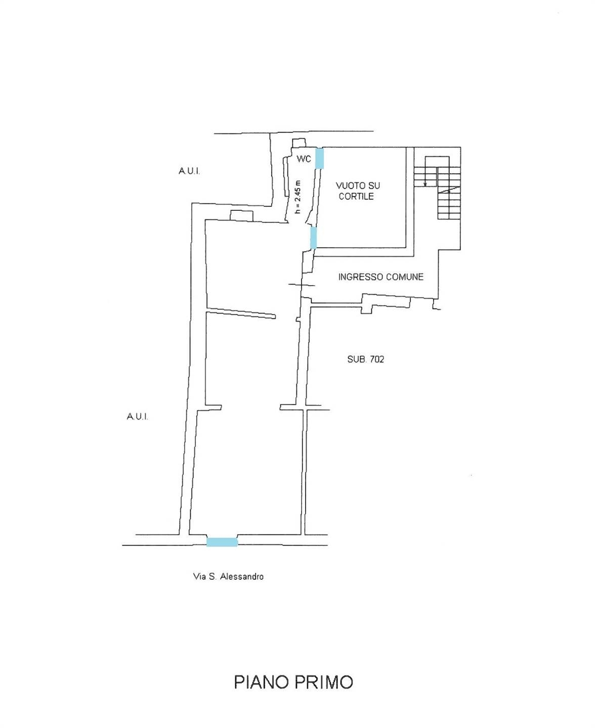
A pochi passi dalla caratteristica piazza pontida e via xx settembre, proponiamo bilocale posto al primo piano di una palazzina storica, l'appartamento si compone di sala con cucina a vista, camera, bagno finestrato. L' immobile è stato oggetto di ristrutturazione recente (2015) che ha interessato: l' installazione degli infissi in legno con triplo vetro, caldaia nuova per riscaldamento autonomo a pavimento, travi a vista, predisposizione aria condizionata. L'ubicazione dell' appartamento è centralissima, il che lo rende appetibile anche per uso ricettivo. Per ulteriori informazioni contattare il numero rag. Scoppettuolo fabio classe energetica: d
| Codice inserzione: | 1769569877 |
| Rif. Annuncio: | AL |
| Provincia: | Bergamo |
| Comune: | Bergamo |
| Zona: | Centrale |
| Superficie (Mq) : | 60 Mq. |
| Tipo immobile: | Appartamento |
| Stato immobile: | ristrutturato |
| Piano: | 1 |
| Camere: | 1 |
| Bagni: | 1 |
| Prezzo | € 148.000 |