home page > Annunci immobiliari in Italia > Lombardia > Bergamo > Castel Rozzone > Terreni in vendita > Scheda immobile

Terreni in vendita a Castel Rozzone

COMPILA IL MODULO SOTTOSTANTE PER RICEVERE MAGGIORI INFORMAZIONI







Invia la richiesta ad altre agenzie
Accetto il trattamento dei miei dati



Casexte vaprio d'adda

Via natale perego, 64
20069 Vaprio d'Adda (MI)

0290988171

Castel Rozzone
Prezzo: € 68.000
467



Descrizione:
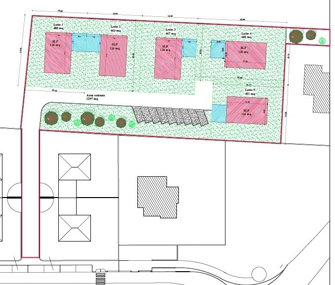
Situati in zona prestigiosa del paese per gli immobili residenziali, con una posizione previlegiata a soli 7 km dalla stazione ferroviaria di treviglio ed a 7 km dal casello autostradale bre.be.mi. Di caravaggio, proponiamo lotti di terreno edificabili in posizione favorevole per raggiungere scuole, asilo, negozi, centro paese. Ideale per famiglie e professionisti che desiderano tranquillità e comodità.lotto n. 1 € 68.000lotto n. 2 € 68.000lotto n. 3 € 80.000lotto n. 4 € 85.000lotto n. 5 € 83.000




Caratteristiche immobile:
Codice inserzione: 1766639136
Rif. Annuncio: 6067
Provincia: Bergamo
Comune: Castel Rozzone
Superficie (Mq) : 467 Mq.
Tipo immobile: Terreni
Stato al rogito: Libero

Costi:
Prezzo € 68.000
Spese condominiali: € 0


Efficienza energetica: