home page > Annunci immobiliari in Italia > Lombardia > Bergamo > Urgnano > Case e ville a schiera in vendita > Scheda immobile

Case e ville a schiera in vendita a Urgnano

COMPILA IL MODULO SOTTOSTANTE PER RICEVERE MAGGIORI INFORMAZIONI







Invia la richiesta ad altre agenzie
Accetto il trattamento dei miei dati



Consulenze casa

Via s.f. Neri
24059 Urgnano (BG)

34789.15.337    3478915337    Riferimenti: Roberto Radici

Urgnano
Prezzo: € 275.000
C
2
145



Descrizione:
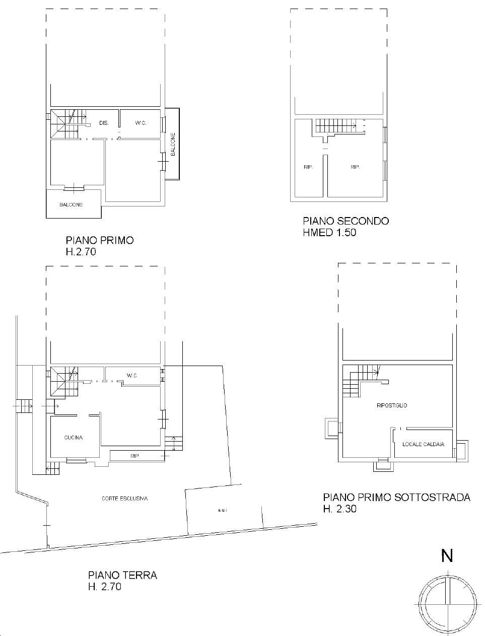
Imperdibile occasione a cologno al serio (a 5 minuti di auto da urgnano).per amanti indipendenza, villa completamente ristrutturata a nuovo.si vende a meno del prezzo di un trilocale di nuova costruzione, vero affare, da vedere!!!in tranquilla zona residenziale, prossima a tutti i servizi del paese, fermata autobus, supermercato, e a 5 minuti a piedi dal centro, si propone villa bifamiliare edificata nel 1984 e completamente ristrutturata a nuovo nel Sono stati eseguiti importanti lavori (circa 90.000€): rifacimento degli impianti, installazione di 6kw per il fotovoltaico pannelli + batterie di accumulo, nuovi pavimenti nella zona giorno, nuovi serramenti pvc a basso emissivo con gas argon, zanzariere a carroarmato, climatizzatori a pompa di calore daikin, ampliamento terrazzo zona notte, installazione colonnina per ricarica auto elettrica, bagni completamente rifatti, etc. Tetto rifatto nel 2015 e poi rivisto in sede di installazione pannelli fotovoltaici.la casa si presenta praticamente nuova e abitabile da subito, senza lavori da farsi, venduta con possibilità anche di arredo completo (con valore a nuovo pari a circa 25.000€ comprensivo di elettrodomestici, lampadari, tende, arredo bagno. Casa pronta da abitare!!!. Telefonare in studio per avere maggiori informazioni) ingresso indipendente sia pedonale che carrabile, nessuna spesa condominiale. Si dispone su 3 livelli fuori terra oltre piano seminterrato:piano terra/rialzato (circa 50mq): ingresso, soggiorno, cucina abitabile separata, disimpegno, bagno. Area esterna terrapieno piastrellata (circa 100mq) di cui 30mq circa di patio perfetto per le grigliate estive, box singolo a livello strada di circa 16mq. Non adatta a chi cerca grande giardino ma perfetta per chi vuole area esterna per pranzare all'aperto.piano 1° (circa 50mq): disimpegno, 2 grandi camere da letto, bagno con grande piatto doccia, 2 balconi a servizio delle camere di cui uno è piccolo terrazzo vivibile di quasi 6mq.piano seminterrato (circa 53mq): grande locale taverna/ripostiglio oltre locale tecnico per impiantistica oltre che ad uso lavanderia.al secondo piano presenza di vano sottotetto parzialmente sfruttabile con metratura di circa 23mq + altri 12mq uso solaio.c.e. C, ep gl nren 101,99 kw/h mq/a.prezzo 275.000€si precisa che, la compravendita, resterà subordinata all'esito positivo di ricerca di nuova abitazione a cura di parte venditrice con tempistica minimo di 3 mesi dalla sottoscrizione della proposta di acquisto. casa quindi libera dopo circa 6 mesi dalla sottoscrizione del contratto preliminare di compravendita. Per maggiori informazioni chiamare in agenzia.classe energetica: c 101,99 kwh/m2 a




Caratteristiche immobile:
Codice inserzione: 1763338299
Rif. Annuncio: V001298
Provincia: Bergamo
Comune: Urgnano
Superficie (Mq) : 145 Mq.
Tipo immobile: Case e ville a schiera
Camere: 2

Costi:
Prezzo € 275.000


Efficienza energetica:
Classe energetica: C
Indice di prestazione energetica (EPgl): 101.99 kWh/mq annui