Descrizione:
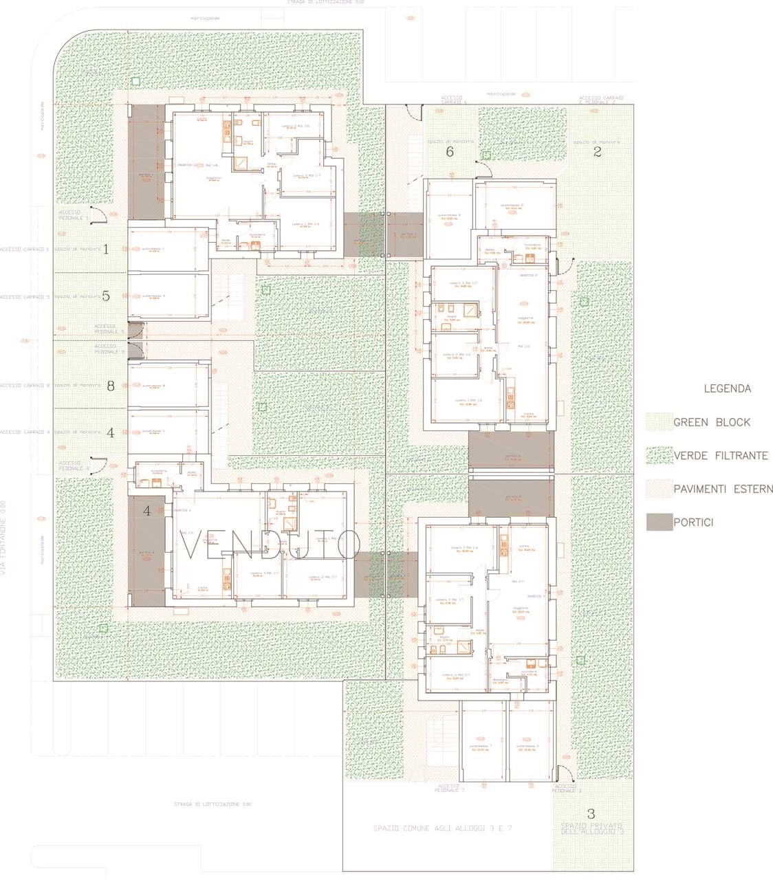
Nuovi appartamenti e bifamiliare a castelcovatiin zona residenziale, palazzina di nuova realizzazione composta da 4 appartamenti quadrilocali totalmente indipendenti e liberi sui quattro lati, il primo e secondo al piano terra e gli ultimi due al piano primo. Tutti gli appartamenti possiedono un giardino esclusivo, portico e autorimessa. e' inoltre in fase di costruzione una bifamiliare disposta su un unico livello con spazioso giardino, portico e doppia autorimessa. impianti di ultima generazione: pompa di calore, riscaldamento a pavimento, predisposizione climatizzatore e antifurto, impianto fotovoltaico, serramenti in pvc e tanto altro...possibilità per l'acquirente di personalizzare e scegliere le finiture interne.appartamenti quadrilocali a partire da €: 255.000,00bifamiliare € 380.000 classe energetica: a+