home page > Annunci immobiliari in Italia > Lombardia > Brescia > Castenedolo > Case e ville indipendenti in vendita > Scheda immobile

Case e ville indipendenti in vendita a Castenedolo

COMPILA IL MODULO SOTTOSTANTE PER RICEVERE MAGGIORI INFORMAZIONI







Invia la richiesta ad altre agenzie
Accetto il trattamento dei miei dati



Famiglietti marilinda

Via matteotti 117
25014 Castenedolo (BS)

0306153529    Riferimenti: MARILINDA FAMIGLIETTI

Castenedolo
Prezzo: € 220.000
2
2
125
Piano terra
1



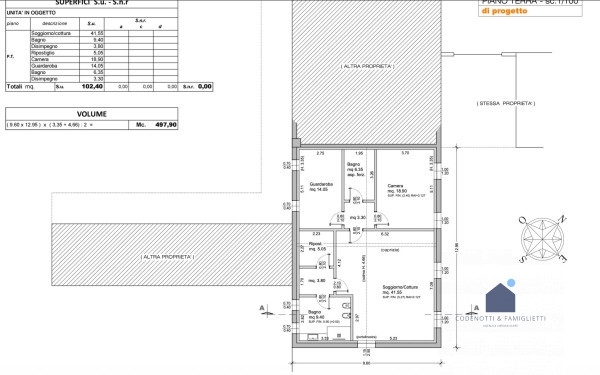
Descrizione:
In splendido contesto in mezzo al verde proponiamo villa di testa al rustico, da rifinire a seconda delle proprie esigenze. Ad oggi open space di circa 110 mq su unico livello con splendide travi a vista, tetto e muri perimetrali del 2007, possibilità di creare zone soppalcate. Giardino esclusivo di circa 170 mq, doppio posto auto privato. Ad oggi accatastato ad uso magazzino/scuderia con progetto per cambio destinazione d'uso in residenziale approvato. Possibile soluzione quadrilocale con ottimi spazi, con preventivo di spesa per ultimazione di circa 135.000. Tetto del 2007 che non necessita di lavori. Euro 220.000 tel




Caratteristiche immobile:
Codice inserzione: 1770695800
Rif. Annuncio: L220
Provincia: Brescia
Comune: Castenedolo
Superficie (Mq) : 125 Mq.
Tipo immobile: Case e ville indipendenti
Stato immobile: usato da riattare
Anno costruzione/ristrutturazione: 2007
Piano: Piano terra
Camere: 2
Posti auto scoperti: 1 posto auto
Bagni: 2

Costi:
Prezzo € 220.000


Efficienza energetica:
Classe energetica: Immobile non soggetto all'obbligo di certificazione
Riscaldamento: autonomo