031701396 3484205749 Riferimenti: Bidoggia Monica
 2
						
						2					 100
						
						100					
						
						Descrizione:
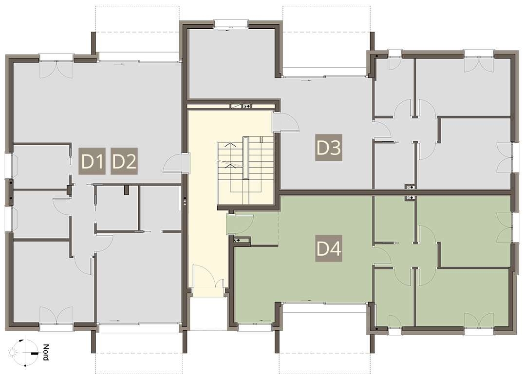
Rovellasca, in una zona residenziale tranquilla, a pochi passi dalla stazione, dal parco burghè, dal centro paese e dalla nuova pedemontana, proponiamo un trilocale al piano terra con ampio giardino privato. L'appartamento, caratterizzato da un'ottima esposizione solare, è composto da soggiorno con cucina semi abitabile a vista, due camere e doppi servizi. Costruzione moderna con ottimo capitolato e possibilità di personalizzare le finiture, dotato di riscaldamento a pavimento con pompa di calore alimentata da impianto fotovoltaico, pannelli solari per la produzione di acqua calda sanitaria e ventilazione meccanica centralizzata. Soluzione ideale per chi desidera vivere nel verde e nella tranquillità, senza rinunciare alla comodità dei servizi. Classe energetica a3. Richiesta euro 275.000,00. Possibilità di box. Per informazioni o appuntamenti oscar colombo il presente annuncio non costituisce vincolo contrattuale e tutte le caratteristiche inerenti gli immobili pubblicati e le misure eventualmente rilevate o indicate devono considerarsi indicative.classe energetica:					
| Codice inserzione: | 1761869433 | 
| Rif. Annuncio: | V001949 | 
| Provincia: | Como | 
| Comune: | Rovellasca | 
| Superficie (Mq) : | 100 Mq. | 
| Tipo immobile: | Appartamento | 
| Camere: | 2 | 
| Prezzo | € 275.000 |