home page > Annunci immobiliari in Italia > Lombardia > Milano > Corsico > appartamenti in vendita > Scheda immobile

Appartamento in vendita a Corsico

COMPILA IL MODULO SOTTOSTANTE PER RICEVERE MAGGIORI INFORMAZIONI







Invia la richiesta ad altre agenzie
Accetto il trattamento dei miei dati



Immobilstella

Via molinetto di lorenteggio n. 23
20094 Corsico (MI)

02.45100910    02.45106800

Corsico
Prezzo: € 395.000
D
3
2
120
1



Descrizione:
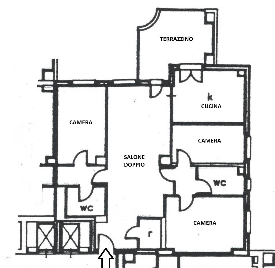
Visita: rif c422, lorenteggio/ dazio, via gonin, in zona servitissima mezzi pubblici, capolinea autobus 50 e tram 14, mm blu s.cristoforo, poche fermate metropolitana linea rossa, adiacenze vodafone village, in complesso signorile , proponiamo quadrilocale di ampia metratura in stabile di nuova ristrutturazione, con terrazzino, dotato di aria condizionata, termoautonomo, composto da ingresso, salone doppio, ampia cucina abitabile, doppi servizi, disimpegno , 3 camere da letto, ripostiglio, terrazzino, porta blindata, luminoso, classe energetica d ipe 145,25, per maggiori informazioni e visite agenzia immobilstella tel classe energetica: d epi: 145,25 kwh/m2 anno




Caratteristiche immobile:
Codice inserzione: 1761538239
Rif. Annuncio: C422cC A1
Provincia: Milano
Comune: Corsico
Superficie (Mq) : 120 Mq.
Tipo immobile: Appartamento
Stato immobile: usato
Piano: 1
Camere: 3
Bagni: 2

Costi:
Prezzo € 395.000


Efficienza energetica:
Classe energetica: D
Indice di prestazione energetica (EPgl): 145.25 kWh/mq annui
Riscaldamento: autonomo