home page > Annunci immobiliari in Italia > Lombardia > Milano > Trezzano Rosa > Case e ville a schiera in vendita > Scheda immobile

Case e ville a schiera in vendita a Trezzano Rosa

COMPILA IL MODULO SOTTOSTANTE PER RICEVERE MAGGIORI INFORMAZIONI







Invia la richiesta ad altre agenzie
Accetto il trattamento dei miei dati



Unica casa srl

Via raffaello 13/g
20060 Trezzano Rosa (MI)

02.90.98.11.20    0292011748

Trezzano Rosa
Prezzo: € 312.000
D
3
3
106
Piano terra



Descrizione:
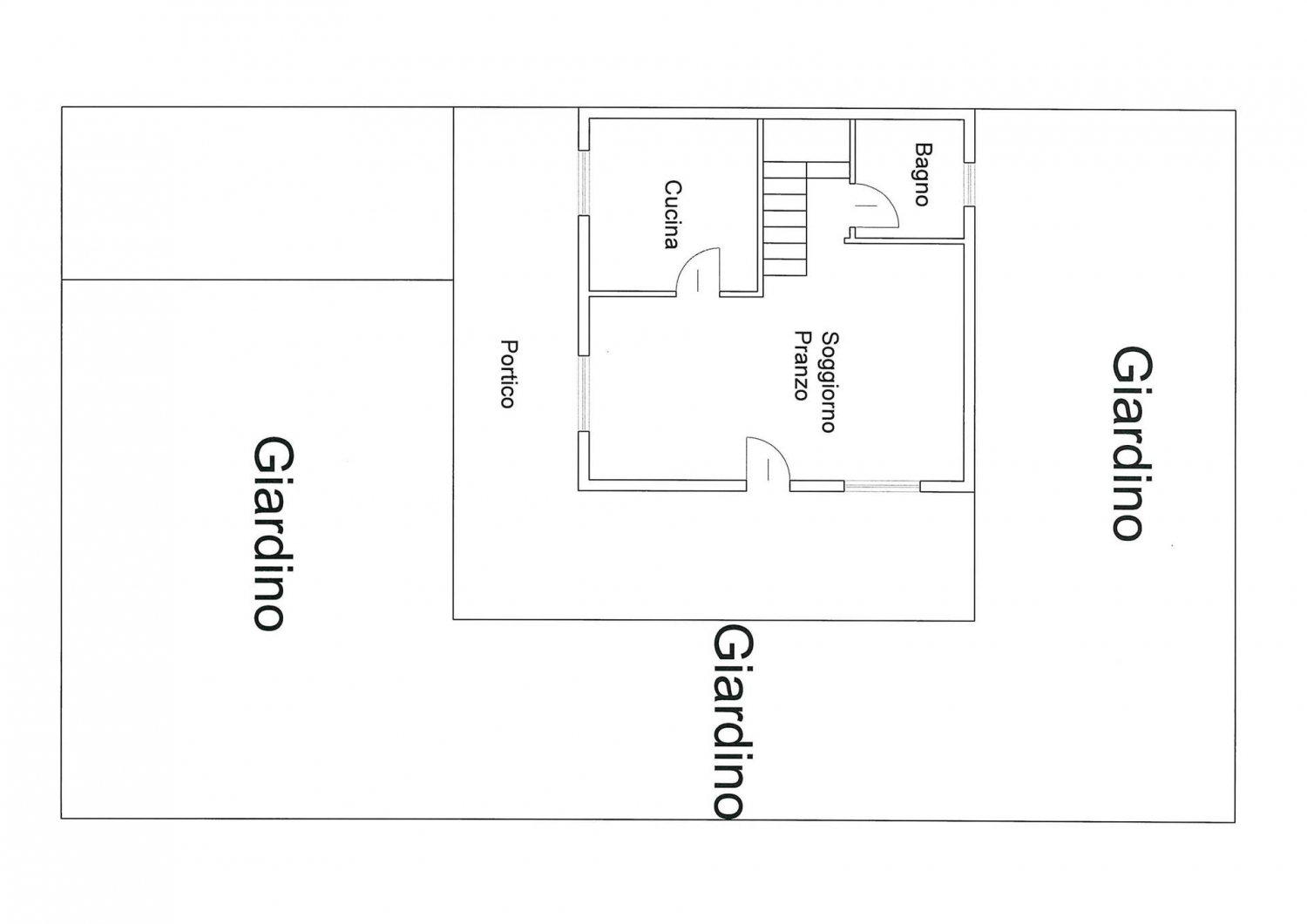
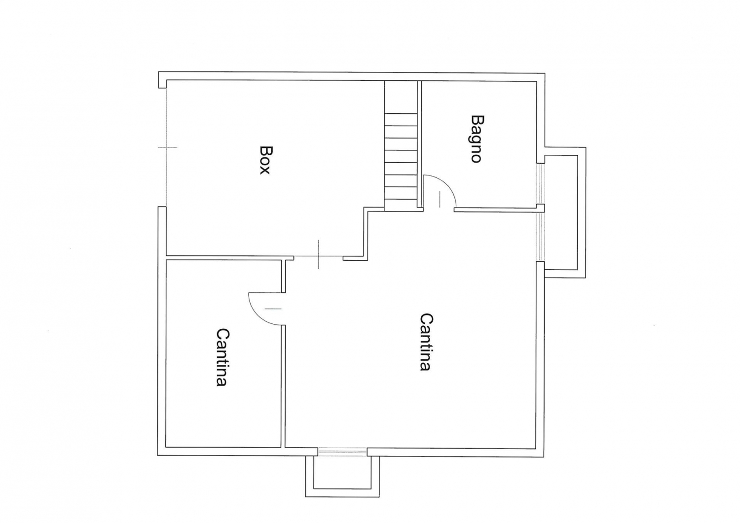
In zona centrale e ottimamente servita, a pochi passi dal centro commerciale e da tutti i principali servizi, proponiamo in vendita una porzione di villetta a schiera di testa, caratterizzata da un ampio giardino privato su tre lati di circa 200 mq, ideale per chi cerca indipendenza, comfort e spazi esterni vivibili.l'ingresso avviene attraverso un portico coperto che conduce direttamente al luminoso soggiorno, seguito da una comoda cucina abitabile, un disimpegno e un bagno di servizio al piano terra. Al piano superiore, collegato da una scala interna in muratura, si sviluppa la zona notte composta da tre spaziose camere da letto, di cui due con accesso al balcone, oltre a un secondo bagno ben rifinito.il piano seminterrato ospita una taverna accogliente con stufa a pellet idro, un ampio bagno/lavanderia, una cantina e l'accesso diretto al box auto, dotato di serranda e cancello automatizzati.la villa si presenta in ottimo stato e offre finiture di qualità e numerosi comfort, tra cui impianto di climatizzazione sia nella zona giorno che nella zona notte, tende da sole, zanzariere e sistema d'allarme.soluzione ideale per famiglie o per chi desidera ampi spazi abitativi in un contesto tranquillo ma ben collegato, pronta da abitare senza necessità di interventi. Disponibile da subito, rappresenta un'ottima opportunità a un prezzo contenuto. Contattaci per maggiori informazioni o per fissare una visita. classe energetica: d epi: 134,21 kwh/m2 anno




Caratteristiche immobile:
Codice inserzione: 1760494286
Rif. Annuncio: 4820RV88438-MP01
Provincia: Milano
Comune: Trezzano Rosa
Superficie (Mq) : 106 Mq.
Tipo immobile: Case e ville a schiera
Piano: Piano terra
Camere: 3
Garage: Singolo
Bagni: 3
Terrazze: 1

Costi:
Prezzo € 312.000


Efficienza energetica:
Classe energetica: D
Indice di prestazione energetica (EPgl): 134.21 kWh/mq annui
Riscaldamento: autonomo