home page > Annunci immobiliari in Italia > Lombardia > Monza e della Brianza > Brugherio > Negozi uffici capannoni in vendita > Scheda immobile

Negozi uffici capannoni in vendita a Brugherio

COMPILA IL MODULO SOTTOSTANTE PER RICEVERE MAGGIORI INFORMAZIONI







Invia la richiesta ad altre agenzie
Accetto il trattamento dei miei dati



Quimmo agency

Via galileo galilei 6
48018 Faenza (RA)

0299944698

Brugherio
Prezzo: € 860.000
680



Descrizione:
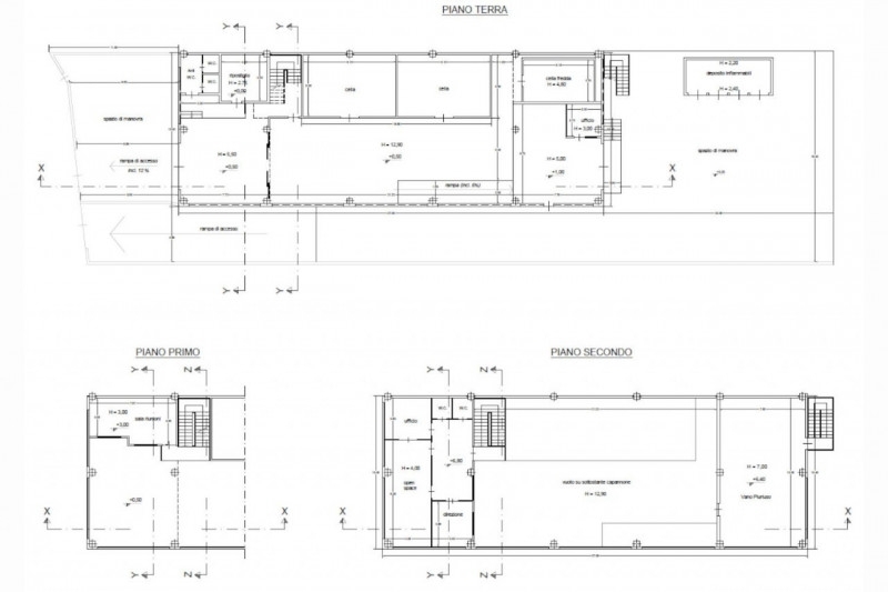
Si propone in vendita capannone completamente ristrutturato in vendita a brugherio, via moia 127, in posizione strategica e facilmente raggiungibile da a4 e tangenziale est. Immobile di testa libero su tre lati, con superficie totale di circa 680 mq composta da ampia area produttiva con altezza fino a 13,5 metri, uffici nuovi su due livelli e soppalco ad uso tecnico o archivio. Area esterna privata di circa 690 mq ideale per manovra mezzi, carico/scarico e parcheggi. Tetto rifatto con impianto fotovoltaico da 60kw, impianti nuovi e baia di carico sul retro. Soluzione moderna, funzionale e pronta all'uso, ideale per attività produttive, logistiche o artigianali.




Caratteristiche immobile:
Codice inserzione: 1769768370
Rif. Annuncio: 2638154
Provincia: Monza e della Brianza
Comune: Brugherio
Superficie (Mq) : 680 Mq.
Tipo immobile: Negozi uffici capannoni
Stato immobile: usato

Costi:
Prezzo € 860.000


Efficienza energetica: