home page > Annunci immobiliari in Italia > Lombardia > Monza e della Brianza > Desio > Negozi uffici capannoni in vendita > Scheda immobile

Negozi uffici capannoni in vendita a Desio

COMPILA IL MODULO SOTTOSTANTE PER RICEVERE MAGGIORI INFORMAZIONI







Invia la richiesta ad altre agenzie
Accetto il trattamento dei miei dati



Immobiliare borromeo

Via borromeo , 16
20811 Cesano Maderno (MB)

0362509099    3440963021    Riferimenti: IMMOBILIARE BORROMEO

Desio
Prezzo: € 270.000
G
273



Descrizione:
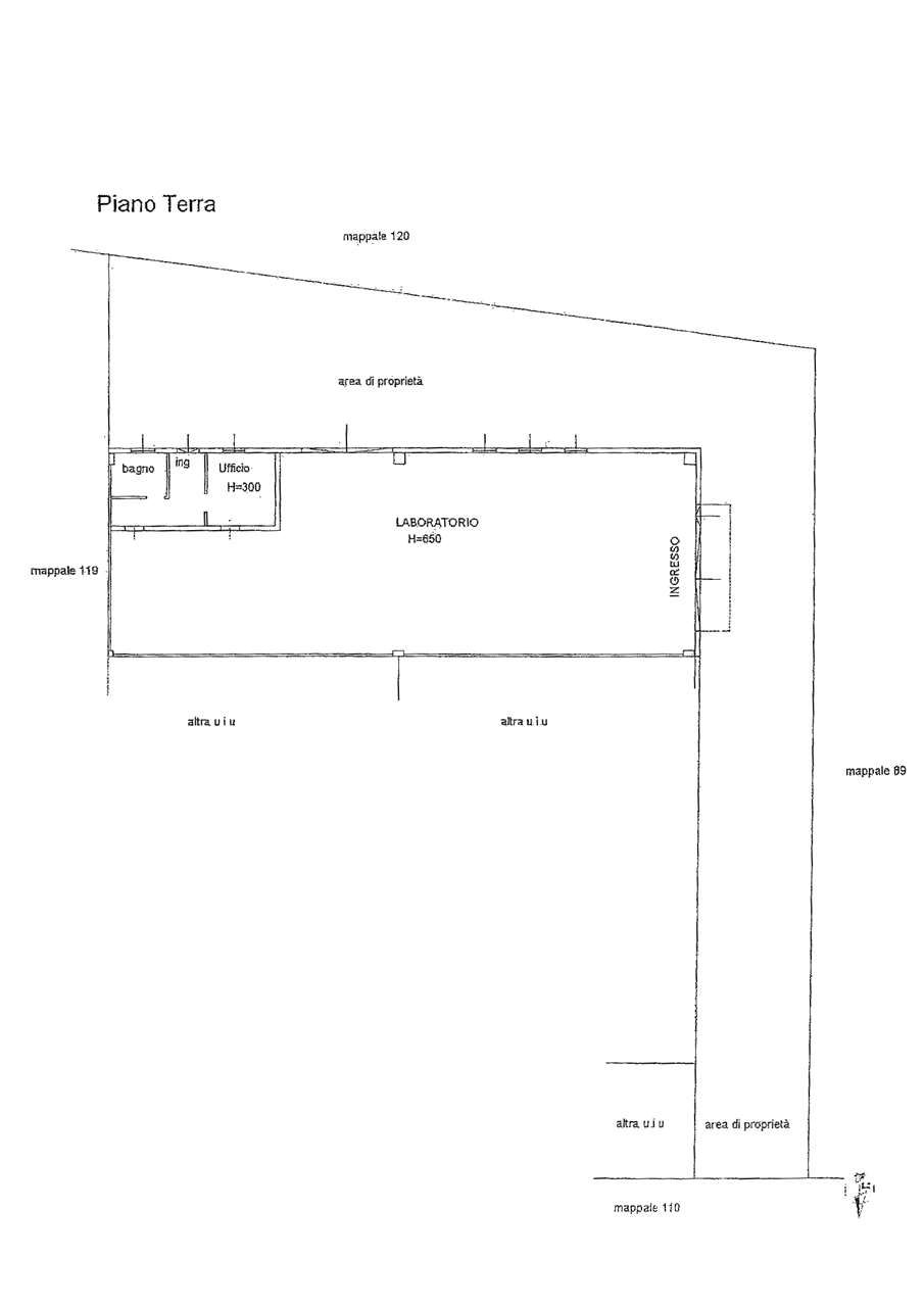
Desio, comodo con la superstrada milano-meda e la pedemontana, proponiamo in vendita capannone/laboratorio di 258 mq con zona ufficio e area esterna recintata di 350 mq. inserito in complesso produttivo, con spazi di manovra per mezzi pesanti.dati capannone:dimensioni: 10,5 x 23 mt.altezza: 6,5 mt.2 portonidoppio accesso carraio + accesso pedonale. presente impianto elettrico industriale, impianto d'aria compressa, antifurto e impianto di sorveglianza con telecamere. il capannone ha destinazione d'uso laboratorio (categoria catastale c/3). disponibile a breve. classe energetica: g




Caratteristiche immobile:
Codice inserzione: 1761261107
Rif. Annuncio: 270CV
Provincia: Monza e della Brianza
Comune: Desio
Superficie (Mq) : 273 Mq.
Tipo immobile: Negozi uffici capannoni

Costi:
Prezzo € 270.000


Efficienza energetica:
Classe energetica: G