0381451187
 3
						
						3					 143
						
						143					
						
						Descrizione:
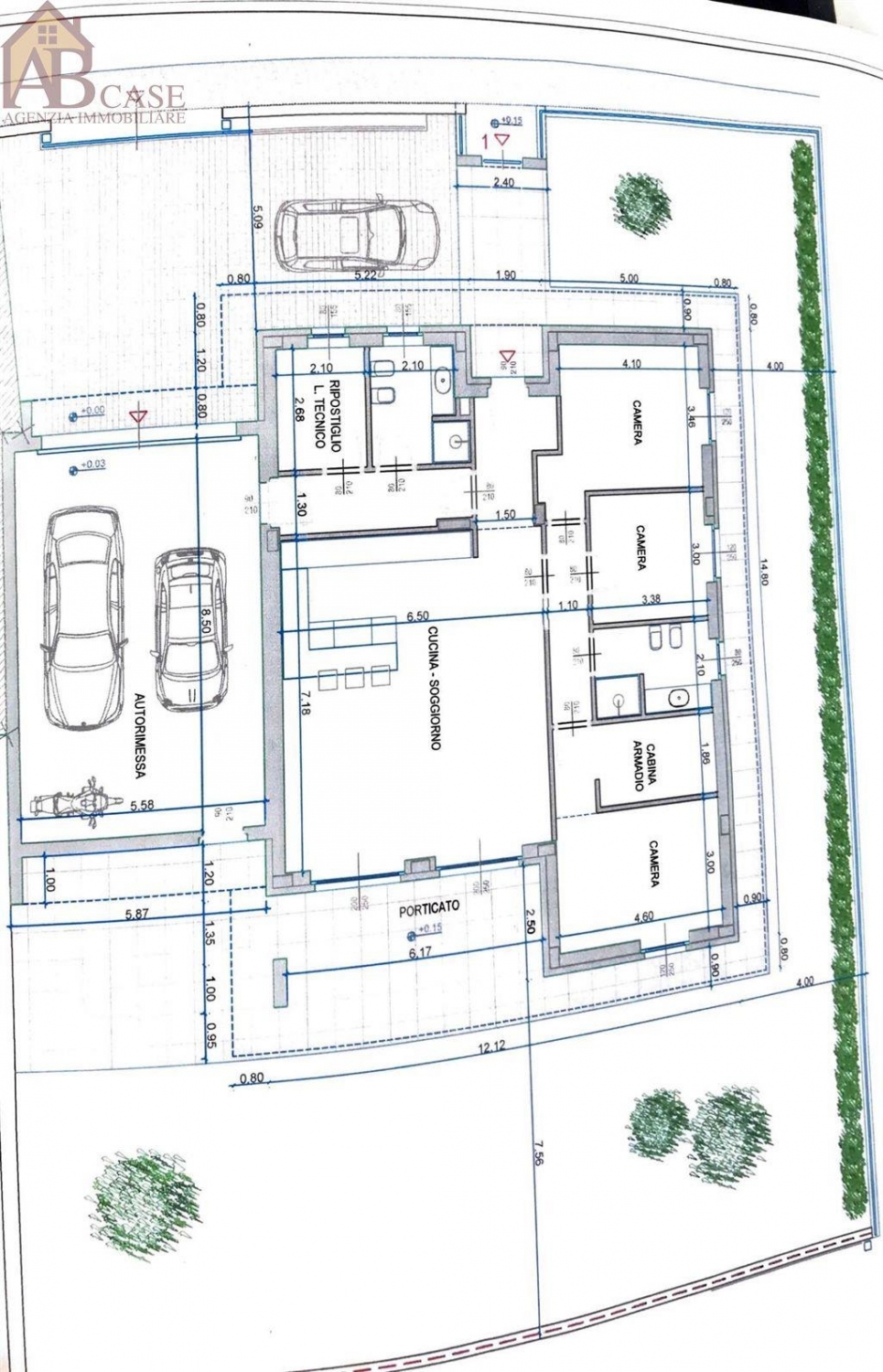
Villa singola in costruzione in piccolo contesto residenziale, vicinissimo a tutti i servizi principali di garlasco con consegna nel 2026, in classe energetica a3, dotata di tutti i confort principali , disposta su un unico piano , composta da : ingresso, soggiorno con cucina a vista, disimpegno, tre camere, due bagni, locale tecnico.porticato e box doppuio.ottimo capitolato!					
| Codice inserzione: | 1761627797 | 
| Rif. Annuncio: | 2488 | 
| Provincia: | Pavia | 
| Comune: | Garlasco | 
| Superficie (Mq) : | 143 Mq. | 
| Tipo immobile: | Case e ville indipendenti | 
| Stato immobile: | nuovo | 
| Camere: | 3 | 
| Garage: | Doppio | 
| Prezzo | € 470.000 | 
| Spese condominiali: | € 0 | 
| Riscaldamento: | autonomo | 
| Tipologia riscaldamento: | Metano |