Descrizione:
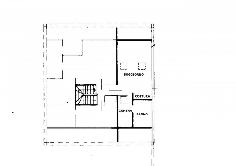
splendido bilocale mansardato con box e posto auto a valdidentro (so) il tuo rifugio in montagna!scopri l'opportunità unica di possedere un angolo di paradiso immerso nella tranquillità e nelle maestose vette della valtellina! proponiamo in vendita a pradelle di isolaccia, valdidentro, un delizioso e accogliente bilocale mansardato, perfetto per chi cerca una soluzione ideale per le proprie vacanze in montagna, per weekend di relax o come vantaggioso investimento immobiliare.situato in via piandelvino, 48, preso il condominio 'la fattoria', l'immobile gode di una posizione privilegiata a valdidentro, rinomata località turistica della provincia di sondrio, lombardia. La frazione di pradelle offre la pace e la serenità desiderate, pur rimanendo comoda ai servizi essenziali e vicina alle innumerevoli attrazioni naturali, impianti sciistici e sentieri per trekking che la valle sa offrire in ogni stagione.caratteristiche dettagliate dell'immobilequesto grazioso appartamento di 41 mq commerciali si trova al terzo e ultimo piano di un edificio ben tenuto, garantendo cosù massima privacy, silenzio e una luminosità eccezionale. L'ingresso si apre su un funzionale e accogliente soggiorno con angolo cottura, ottimizzato negli spazi per offrire comfort e praticità. La zona notte è composta da una confortevole camera da letto e un bagno moderno e ben rifinito, completo di tutti i servizi.il vero valore aggiunto di questa esclusiva proposta è la presenza di dotazioni e caratteristiche che ne esaltano la vivibilità:design mansardato: ambienti caratteristici e accoglienti grazie alle altezze mansardate che donano un tocco di calore e unicità.panorama mozzafiato: goditi ogni giorno panorami spettacolari e indimenticabili sulle montagne circostanti.comodità assoluta: completa la proprietà un indispensabile box auto privato, ottimo anche per custodire sci e biciclette, un posto auto esterno, soluzioni ideali e preziose per la gestione dei veicoli e lo sport in montagna.spese contenute: le spese condominiali ammontano a soli 60 € al mese, rendendo la gestione dell'immobile particolarmente vantaggiosa.destinazione d'uso: ottimo, garantendo versatilità e facilità sia per uso personale che per eventuale messa a reddito.tipologia: appartamento bilocale con 1 camera e 1 bagno.l'immobile si presenta in ottimo stato, pronto per essere abitato fin da subito, senza necessità di interventi. La classe energetica è 'in fase di definizione', a garanzia della futura efficienza energetica.un'occasione imperdibile a un prezzo vantaggioso!proposto a un prezzo incredibile di soli 130.000 €, questo bilocale mansardato rappresenta un'opportunità unica per chi desidera investire in una casa in montagna, sia come punto d'appoggio per le proprie avventure sciistiche ed escursionistiche, sia come immobile da mettere a reddito con ottimi ritorni. Non perdere l'occasione di visitare questo piccolo gioiello!per maggiori informazioni, per ricevere planimetrie o per prenotare una visita senza impegno, non esitare a contattarci. Siamo a tua completa disposizione per accompagnarti nella scoperta della tua prossima casa a valdidentro!ref:57480