0331.51.99.99
 75
						
						75					
						
						Descrizione:
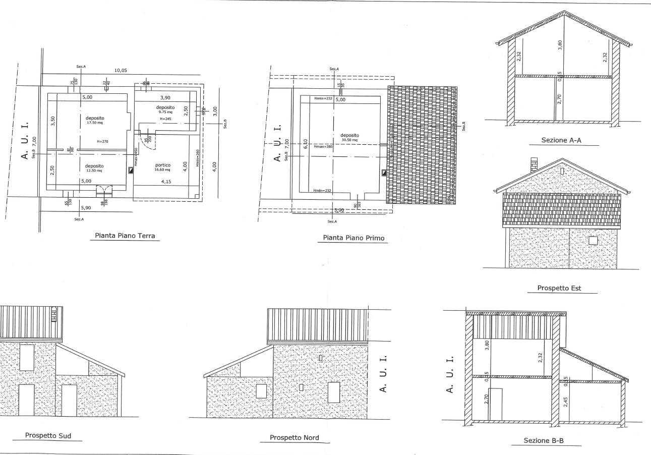
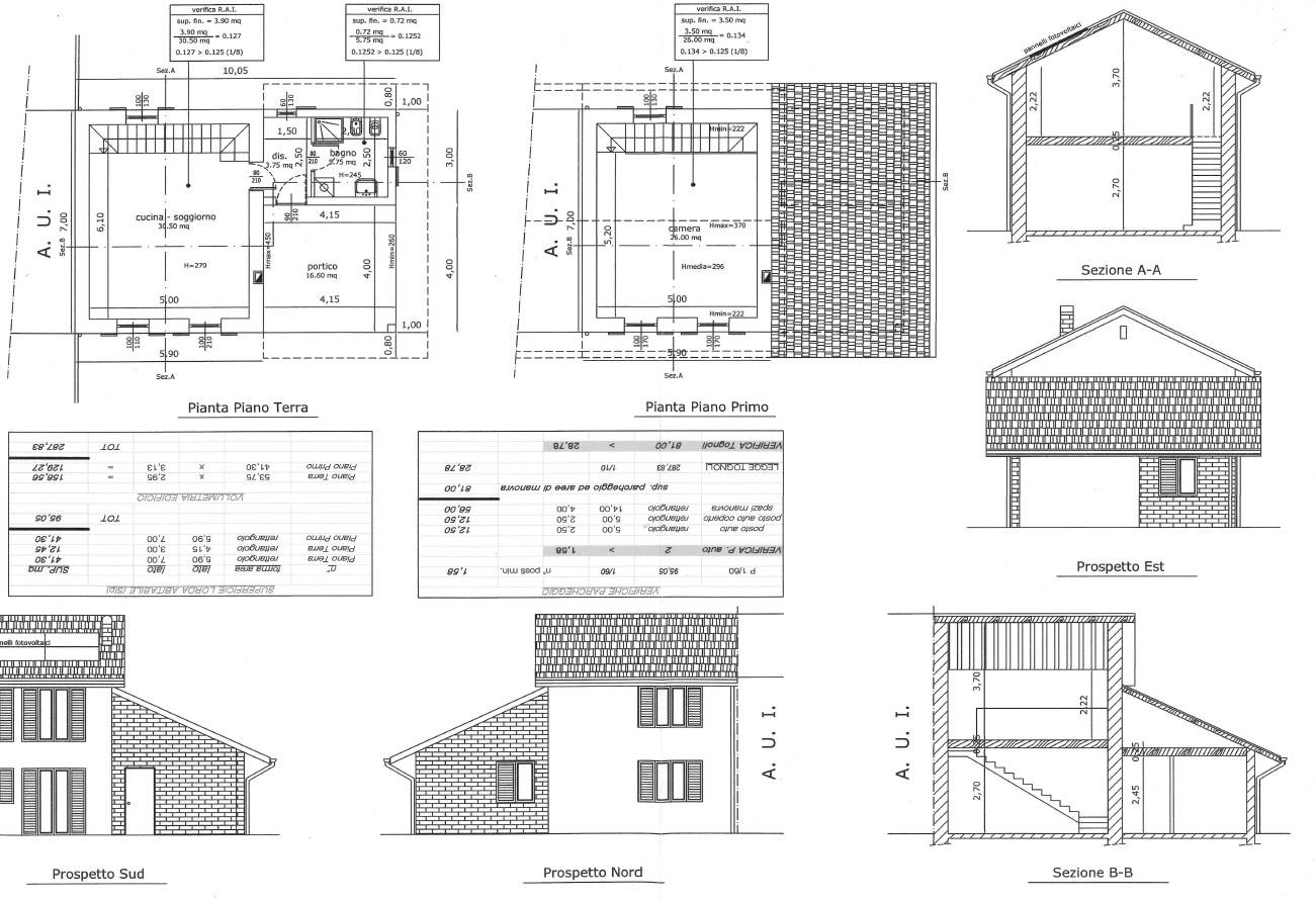
Busto arsizio: zona via cobetta proponiamo in vendita rustico attualmente uso deposito con annessa area pertinenziale di mq 965,00 composto da tre locali e portico al piano terreno ed un locale al sovrastante al piano primo con possibilità di trasformazione ad uso residenziale.prezzo richiesto € 70.000,00 - cod. Agenzia 426i dati e le informazioni riportate nella presente scheda, non hanno alcun contenuto contrattuale e devono essere considerate indicative come sono puramente indicative le planimetrie e le metrature indicate.per maggiori informazioni o per fissare un appuntamento per una visita, potete contattarci direttamente allo o se preferite, scriveteci tramite mail all'indirizzo:   e sarete ricontattati nel più breve tempo possibile.inoltre, nel caso in cui per perfezionare l'acquisto, necessitiate di vendere il vostro attuale immobile, la nostra società potrà curare tutti gli aspetti necessari, suggerendovi la miglior soluzione di vendita nel minor tempo possibile partendo dalla giusta valutazione del vostro immobile.la valutazione della casa è un passo molto importante soprattutto se si vuole vendere in tempi rapidi e con il massimo profitto.per sapere quanto vale il vostro immobile, contattateci direttamente senza impegno e saremo lieti di fissare un appuntamento per la giusta valutazione.rimanendo a vostra disposizione per qualsiasi ulteriore informazione, vi ringraziamo per aver valutato la nostra offerta.b&p real estate s.a.s. Legnano (mi) via c. Del fante n.16 - tel. - mail:   - sito internet:  					
| Codice inserzione: | 1761629905 | 
| Rif. Annuncio: | 448 | 
| Provincia: | Varese | 
| Comune: | Busto Arsizio | 
| Superficie (Mq) : | 75 Mq. | 
| Tipo immobile: | Rustici | 
| Stato al rogito: | Libero | 
| Prezzo | € 70.000 |