home page > Annunci immobiliari in Italia > Lombardia > Varese > Vergiate > Case e ville a schiera in vendita > Scheda immobile

Case e ville a schiera in vendita a Vergiate

COMPILA IL MODULO SOTTOSTANTE PER RICEVERE MAGGIORI INFORMAZIONI







Invia la richiesta ad altre agenzie
Accetto il trattamento dei miei dati



Smarthome

San bernardino, 29
21018 Sesto Calende (VA)

0331808847    3807094617    Riferimenti: Franchini Riccardo

Vergiate
Prezzo: € 380.000
3
160



Descrizione:
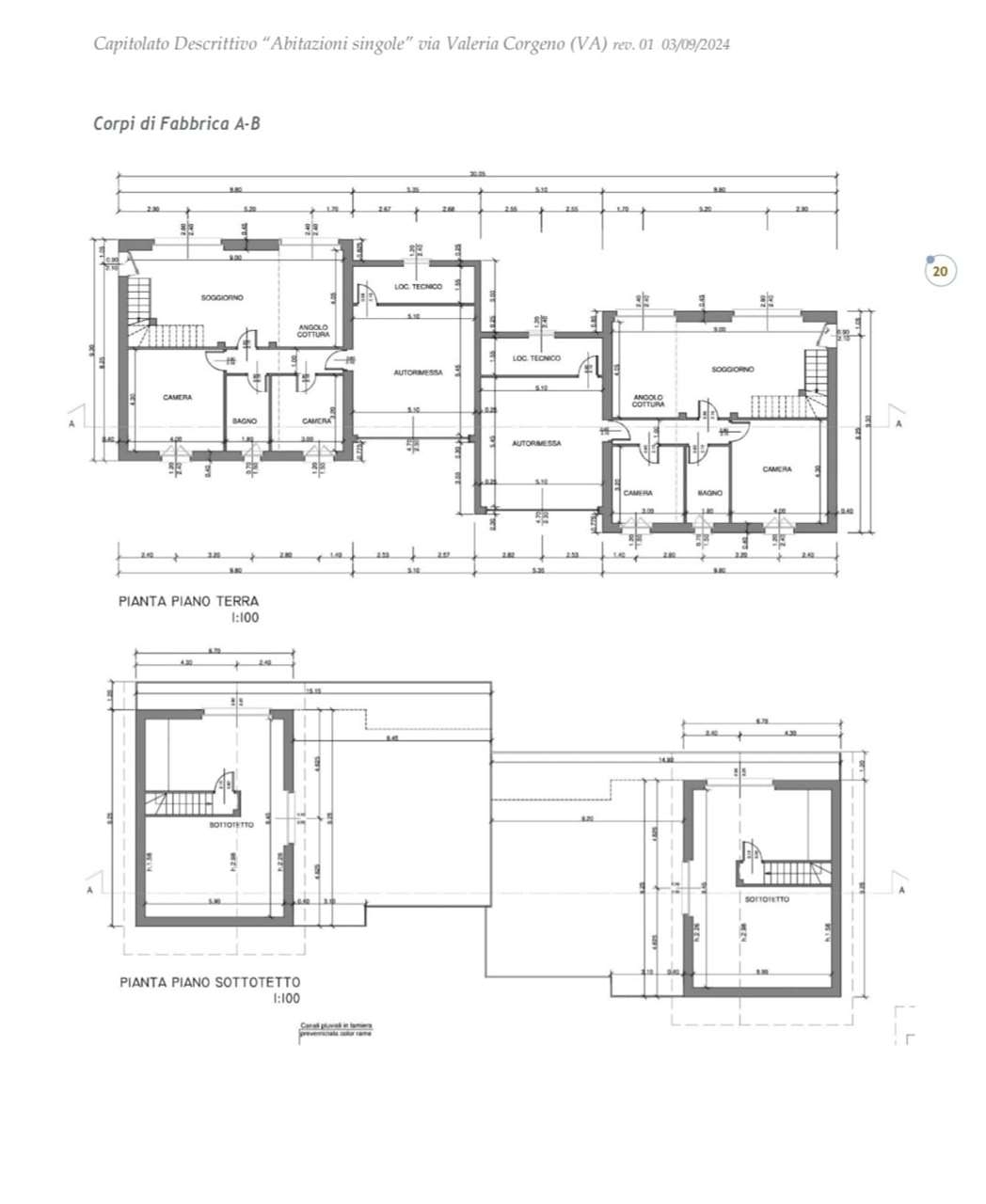
Corgeno nella frazione di vergiate, proponiamo in vendita villa bifamiliare in fase di costruzione cosù composta:al piano terra troviamo ingresso su soggiorno, cucina abitabile, disimpegno, e camera matrimoniale e bagno.al piano primo: ampio locale open space con possibilità di ricavare due camere, spazioso terrazzo, possibilità del secondo bagno completo.completa la proprietà un'autorimessa doppia con accesso diretto , locale tecnico e giardino privato.possibilità di personalizzare l'immobile.immobile in gestione presso la sede operativa di sesto calende, via san bernardino 29 tel e-mail katia miniciclasse energetica:




Caratteristiche immobile:
Codice inserzione: 1771287134
Rif. Annuncio: VKM1721
Provincia: Varese
Comune: Vergiate
Superficie (Mq) : 160 Mq.
Tipo immobile: Case e ville a schiera
Camere: 3

Costi:
Prezzo € 380.000


Efficienza energetica: