home page > Annunci immobiliari in Italia > Puglia > Bari > Grumo Appula > appartamenti in vendita > Scheda immobile

Appartamento in vendita a Grumo Appula

COMPILA IL MODULO SOTTOSTANTE PER RICEVERE MAGGIORI INFORMAZIONI







Invia la richiesta ad altre agenzie
Accetto il trattamento dei miei dati



Agenzia casagency immobiliare tech

Corso vittorio emanuele 76
70027 Palo del Colle (BA)

080.627323    080.627323

Grumo Appula
Prezzo: € 300.000
2
2
90



Descrizione:
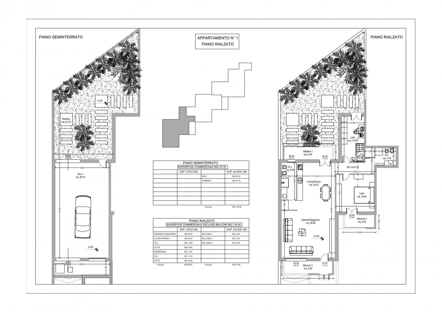
A grumo appula, nella tranquilla e ricercata area residenziale di madonna delle grazie, proponiamo in vendita le dimore del sud, un elegante complesso composto da tre strutture bifamiliari, ciascuna con un appartamento al piano rialzato e uno al primo piano, ciascuno arricchito da spazi esterni di pertinenza, terrazzo o giardino privato, pensati per garantire momenti di relax e ingresso indipendente. in totale saranno realizzati sei appartamenti di prestigio con ingresso indipendente, concepiti per offrire un'esperienza abitativa moderna, efficiente e confortevole.ogni unità è inoltre dotata di box auto, a conferma dell'attenzione dedicata alla praticità e alle esigenze di vita contemporanee.le residenze sono progettate per raggiungere i più alti standard in termini di efficienza energetica: l'intero complesso sarà certificato in classe energetica a4, anche grazie all'installazione di un impianto fotovoltaico da 3 kw per ciascun appartamento. Il comfort interno è ulteriormente supportato da tecnologie all'avanguardia, come il riscaldamento a pavimento e la predisposizione per il raffrescamento canalizzato.ogni appartamento si distingue per caratteristiche interne curate e studiate nel dettaglio, con l'obiettivo di accogliere chi cerca una casa che unisca qualità, design e benessere. La consegna è prevista entro venti mesi.le richieste di acquisto per queste esclusive soluzioni abitative partono da eu. 300.000. per ulteriori informazioni rivolgersi presso casagency immobiliare affiliato palo del colle - corso vittorio emanuele, 76 tel Classe energetica: a4




Caratteristiche immobile:
Codice inserzione: 1763695968
Rif. Annuncio: 4711RA47553
Provincia: Bari
Comune: Grumo Appula
Superficie (Mq) : 90 Mq.
Tipo immobile: Appartamento
Stato immobile: nuovo
Camere: 2
Garage: Singolo
Bagni: 2

Costi:
Prezzo € 300.000


Efficienza energetica: