home page > Annunci immobiliari in Italia > Puglia > Barletta-Andria-Trani > Andria > Terreni in vendita > Scheda immobile

Terreni in vendita a Andria

COMPILA IL MODULO SOTTOSTANTE PER RICEVERE MAGGIORI INFORMAZIONI







Invia la richiesta ad altre agenzie
Accetto il trattamento dei miei dati



Immobiliare castello

Via principe amedeo 2/b
76123 Andria (BT)

0883594973    3483642418    Riferimenti: Riccardo Lomuscio

Andria
Prezzo: € 160.000
300



Descrizione:
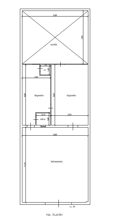
Scopri un'opportunità unica nel cuore di andria!!ti presentiamo un lotto edificabile residenziale di ben 300 mq, situato in una posizione strategica a pochi passi tra via ospedaletto e la zona pip. Questo terreno è attualmente composto da circa 200 mq utilizzati come deposito/laboratorio, oltre a uno spazio esterno retrostante di circa 100 mq, ideale per creare aree verdi o parcheggi.con regolare licenza edilizia, hai l'opportunità di costruire un fabbricato indipendente fino a 250 mq distribuiti su più livelli. in alternativa, puoi optare per realizzare un piccolo condominio con due appartamenti da 100 mq ciascuno e uno aggiuntivo da 50 mq, completati da verande e balconi che offriranno spazi all'aperto perfetti per il relax.la posizione del terreno è altamente favorevole: si trova vicino ai principali servizi della città e alle vie di comunicazione più importanti. è l'ideale sia per chi desidera investire nella propria abitazione che per sviluppatori immobiliari interessati a progetti residenziali.non perdere questa occasione imperdibile!!




Caratteristiche immobile:
Codice inserzione: 1769768331
Rif. Annuncio: E010
Provincia: Barletta-Andria-Trani
Comune: Andria
Superficie (Mq) : 300 Mq.
Tipo immobile: Terreni

Costi:
Prezzo € 160.000


Efficienza energetica: