home page > Annunci immobiliari in Italia > Puglia > Lecce > Cavallino > Negozi uffici capannoni in vendita > Scheda immobile

Negozi uffici capannoni in vendita a Cavallino

COMPILA IL MODULO SOTTOSTANTE PER RICEVERE MAGGIORI INFORMAZIONI







Invia la richiesta ad altre agenzie
Accetto il trattamento dei miei dati



Fuori porta immobiliare

Via caprarica , 8
73020 Cavallino (LE)

0832402482    3202950248    Riferimenti: Antonucci Angelo

Cavallino
Prezzo: € 40.000
E
1
70
Piano rialzato



Descrizione:
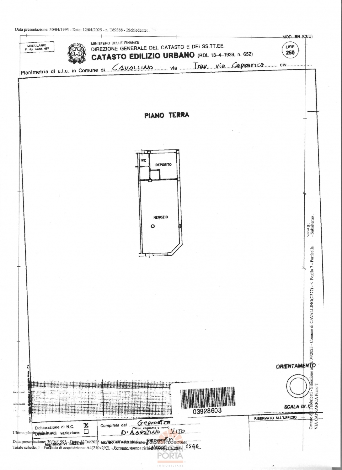
Volete porre delle solide basi alla vostra attività commerciale? Oppure volete invece investire bene i vostri risparmi? Sarete accontentati da quest'interessante locale commerciale posto al piano rialzato all'interno di un complesso residenziale/commerciale ubicato a due passi dalla piazza centrale del paese, su strada di discreto traffico veicolare, in un contesto dove sono già presenti diversi altri negozi. Esso è composto da: ampio vano unico, deposito/vano pluriuso, antibagno e bagno. Una vetrina su strada. Ottime condizioni. Il locale è stato recentemente interessato da lavori di revisione e parziale rifacimento dell'impianto idrico-fognante e di totale rifacimento dell'impianto elettrico. Due porte tagliafuoco, saracinesca a comando elettrico. Si presta benissimo ad ospitare qualsiasi tipologia di attività commerciale. Ottimo altresì come studio professionale o di rappresentanza. Classe Energ.: E; EP gl,nren: 94,62 kwh/mqa. IMPORTANTE: Il venditore valuta la possibilità di alienare l'immobile con la formula del Patto di riserva della proprietà. Questa formula si sostanzia con un atto notarile col quale la proprietà viene trasferita a fronte di un significativo anticipo sul prezzo. In conseguenza però del patto di riserva, la piena proprietà del bene si ratifica quando l'acquirente avrà saldato l'intero prezzo entro il tempo concesso dal venditore. Al momento del saldo bisognerà recarsi nuovamente dal notaio per la stipula dell' Atto di quietanza finale. Le spese relative agli atti notarili sono interamente a carico dell'acquirente. Nel nostro caso, la proprietà chiede un anticipo di € 20.000,00 più il pagamento di successive 24 rate mensili costanti, ciascuna di ca. € 830,00, fino al raggiungimento del saldo. Interessa? Non esitate a contattarci! La vendita si intende sempre a corpo e non a misura. Le informazioni contenute nel presente annuncio sono puramente indicative e non costituiscono elemento contrattuale. Per qualsiasi esigenza, chiamateci dal lunedì al venerdì h 9:00-13:00 e 15:30-20:30; sabato solo 9:00-13:00.

Servizi nei pressi dell'immobile:
Trasporti pubblici, supermercato, asilo nido, scuole, farmacia, bar, edicola, ristorante/trattoria, albergo, ufficio postale, chiesa, centro commerciale, palestra, lavanderia automatica.




Caratteristiche immobile:
Codice inserzione: 1770204936
Rif. Annuncio: 2184
Provincia: Lecce
Comune: Cavallino
Superficie (Mq) : 70 Mq.
Tipo immobile: Negozi uffici capannoni
Stato immobile: usato
Anno costruzione/ristrutturazione: 1991
Piano: Piano rialzato
Stato al rogito: Libero
Esposizione: Sud-Ovest
Bagni: 1

Costi:
Prezzo € 40.000
Spese condominiali: € 18


Efficienza energetica:
Classe energetica: E
Indice di prestazione energetica (EPgl): 102.62 kWh/mc annui