home page > Annunci immobiliari in Italia > Sicilia > Palermo > Villabate > Negozi uffici capannoni in affitto > Scheda immobile

Negozi uffici capannoni in affitto a Villabate

COMPILA IL MODULO SOTTOSTANTE PER RICEVERE MAGGIORI INFORMAZIONI







Invia la richiesta ad altre agenzie
Accetto il trattamento dei miei dati



Immobilfin.srls

Viale europa 144/a
90039 Villabate (PA)

091493053    Riferimenti: immobilfin

Villabate
Prezzo: € 1.200
1
150



Descrizione:
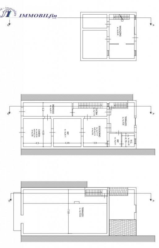
Cod. 2077 locale commerciale a villabate mq totali 150 + giardino 350 mq scopri un'opportunità unica per il tuo business. Proponiamo in affitto un locale commerciale situato sul corso principale di villabate, a pochi passi dallo svincolo autostradale. Questo immobile ristrutturato sarà pronto da giugno 2026 e offre una superficie totale di ben 150 mq. L'ingresso conduce a un disimpegno che apre su tre ampi vani distribuiti lungo un corridoio funzionale, completati da un ripostiglio e servizi igienici. Al piano terra di circa 115 mq troviamo spazi luminosi con accesso diretto ad un terrazzo esterno a livello, perfetto come area relax. Ma non è tutto: al piano semi-cantinato troverai ulteriori tre vani utilizzabili secondo le tue necessità commerciali, accompagnati da un giardino esterno di circa 350 mq che aggiunge valore all'immobile. Inoltre, il terrazzo sovrastante offre ulteriori opportunità grazie ai suoi generosi 103 mq calpestabili.la posizione adiacente allo svincolo autostradale consente una visibilità eccellente e facilita l'accesso sia per i clienti locali che per quelli provenienti dalle aree limitrofe. Il locale si trova vicino ai principali servizi pubblici e alle vie più trafficate della città.non perdere questa occasione imperdibile! per maggiori informazioni o per organizzare una visita al locale commerciale contatta la nostra agenzia immobiliare oggi stesso tel oppure ci troviamo a villabate, viale europa 144/a - mail:




Caratteristiche immobile:
Codice inserzione: 1771558849
Rif. Annuncio: 2077
Provincia: Palermo
Comune: Villabate
Superficie (Mq) : 150 Mq.
Tipo immobile: Negozi uffici capannoni
Stato immobile: ristrutturato
Bagni: 1
Terrazze: 2

Costi:
Prezzo € 1.200


Efficienza energetica: