home page > Annunci immobiliari in Italia > Toscana > Firenze > Borgo San Lorenzo > Negozi uffici capannoni in affitto > Scheda immobile

Negozi uffici capannoni in affitto a Borgo San Lorenzo

COMPILA IL MODULO SOTTOSTANTE PER RICEVERE MAGGIORI INFORMAZIONI







Invia la richiesta ad altre agenzie
Accetto il trattamento dei miei dati



Studio m immobiliare di maura moricci

Via g.galilei,14/16
50032 Borgo San Lorenzo (FI)

0558494199    0558494199

Borgo San Lorenzo
Prezzo: € 1.600
G
1
86



Descrizione:
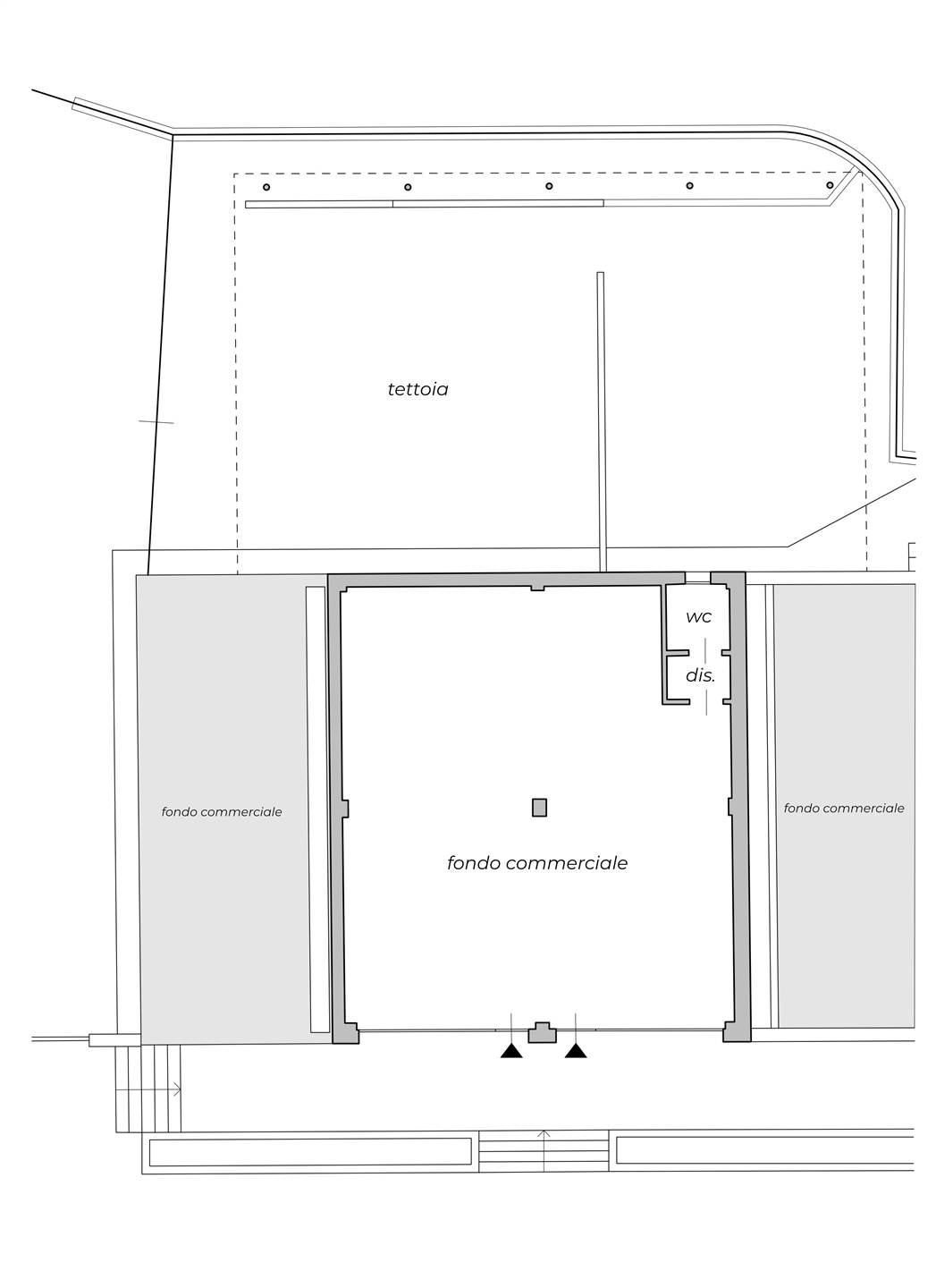
Borgo san lorenzo, centrale, negozio su strada alta percorrenza con doppia vetrina.la metratura del fondo è di 86 mq con antibagno e bagno ed ha una ampia tettoia collegata di 117 mq. Sul retro e comodissima per carico e scarico dell'attività.l'altezza interna di 3,30 mt.ottime condizioni pronto all'uso.termosingolo.richiesti euro 1.600,00 classe energetica: d




Caratteristiche immobile:
Codice inserzione: 1768791152
Rif. Annuncio: XL202602
Provincia: Firenze
Comune: Borgo San Lorenzo
Superficie (Mq) : 86 Mq.
Tipo immobile: Negozi uffici capannoni
Stato immobile: usato
Bagni: 1

Costi:
Prezzo € 1.600


Efficienza energetica:
Classe energetica: G
Riscaldamento: autonomo