home page > Annunci immobiliari in Italia > Toscana > Firenze > Campi Bisenzio > appartamenti in vendita > Scheda immobile

Appartamento in vendita a Campi Bisenzio

COMPILA IL MODULO SOTTOSTANTE PER RICEVERE MAGGIORI INFORMAZIONI







Invia la richiesta ad altre agenzie
Accetto il trattamento dei miei dati



Casabella immobiliare

Via tassoni, 60
50013 Campi Bisenzio (FI)

055...89.53.825    055...89.53.825

Campi Bisenzio
Prezzo: € 235.000
A1
2
1
65
Piano terra



Descrizione:
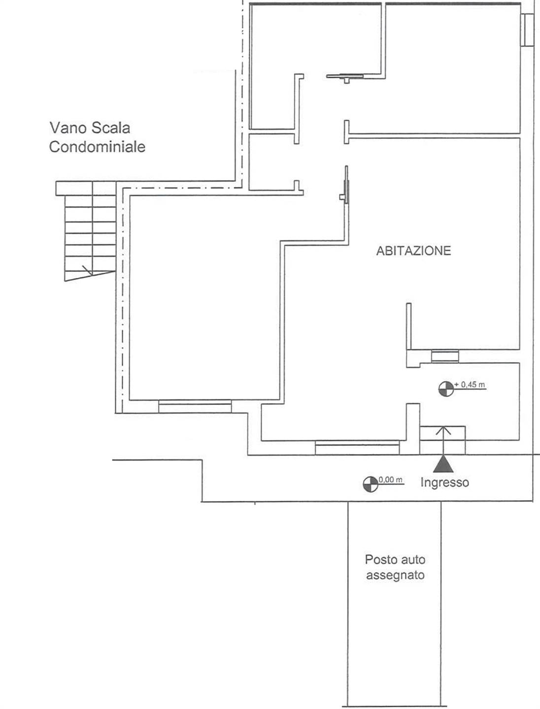
Campi bisenzio, tra san lorenzo e 'la villa', in conteso prettamente residenziale, tranquillo e silenzioso, nonché a due passi dal centro cittadino e da tutti i principali servizi, si propone in vendita delizioso trilocale di nuova ristrutturazione di 65mq catastali, oltre posto auto, sito al piano terra di una piccola palazzina di soli due piani. L'immobile, dotato di entrata indipendente su strada, si compone di loggia di ingresso che introduce alla zona giorno, un grazioso soggiorno con angolo cottura, disimpegno notte, servizio ad areazione forzata con doccia, una camera da letto matrimoniale, una camera singola e vano ripostiglio. Completa la proprietà un posto auto scoperto, assegnato, ubicato fronte ingresso. L'appartamento, frutto di un'accurata ristrutturazione in corso d'opera, verrà consegnato completamente rifinito, con possibilità di scelta del capitolato. Non vi sono spese condominiali. Ideale come acquisto prima casa per famiglie giovani o per persone anziane, data l'assenza di barriere. La richiesta è di euro 235.000. Libero da novembre 2025. Vendesi. classe energetica: a




Caratteristiche immobile:
Codice inserzione: 1757644262
Rif. Annuncio: NUO 1/2486
Provincia: Firenze
Comune: Campi Bisenzio
Zona: San Lorenzo  
Superficie (Mq) : 65 Mq.
Tipo immobile: Appartamento
Stato immobile: ristrutturato
Piano: Piano terra
Camere: 2
Bagni: 1

Costi:
Prezzo € 235.000


Efficienza energetica:
Classe energetica: A1
Riscaldamento: autonomo