home page > Annunci immobiliari in Italia > Toscana > Firenze > Campi Bisenzio > Case e ville indipendenti in vendita > Scheda immobile

Case e ville indipendenti in vendita a Campi Bisenzio

COMPILA IL MODULO SOTTOSTANTE PER RICEVERE MAGGIORI INFORMAZIONI







Invia la richiesta ad altre agenzie
Accetto il trattamento dei miei dati



Casabella immobiliare

Via tassoni, 60
50013 Campi Bisenzio (FI)

055...89.53.825    055...89.53.825

Campi Bisenzio
Prezzo: € 299.000
G
3
2
128
Piano terra



Descrizione:
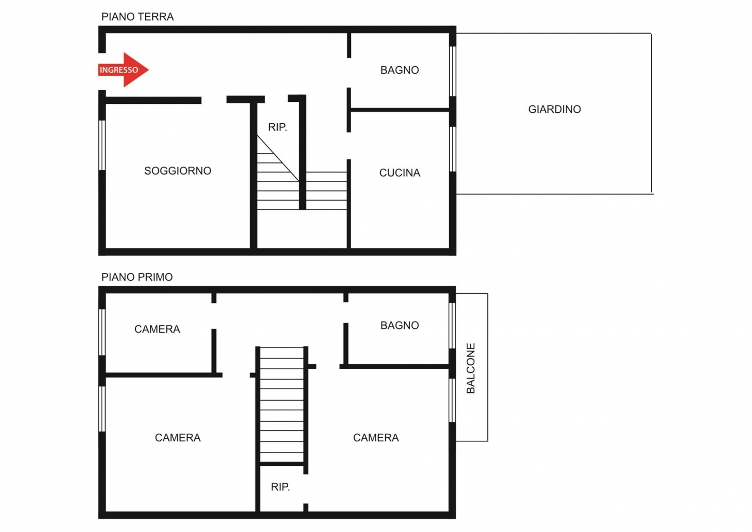
Campi bisenzio, in posizione centrale (sebbene al di fuori della ztl), dunque in prossimità di tutti i principali servizi, si propone in vendita ampio terratetto d'epoca di 128 mq catastali, oltre resede tergale e balcone. L'immobile, disposto su due livelli oltre sottotetto e libero su due lati, è composto, al pian terreno, da accogliente ingresso/disimpegno, ampio soggiorno, un primo servizio finestrato con doccia e antibagno, pratico ripostiglio e cucina abitabile collegata al grazioso resede tergale piastrellato. Salendo le scale si raggiunge il piano primo, dove si sviluppa la zona notte, costituita da due ampie camere da letto matrimoniali, camerina/studio e un ulteriore servizio finestrato con vasca. La camera da letto matrimoniale posta sul lato tergale dell'immobile è collegata ad un pratico balcone e, tramite piccolo vano ripostiglio, ad uno spazioso sottotetto. L'immobile, sebbene datato e da rimodernare, si presenta in buono stato di conservazione e si presta idealmente per famiglie numerose, amanti dell'indipendenza e del taglio classico dell'epoca. Richiesti euro 299.000, libero subito, vendesi. Classe energetica: g




Caratteristiche immobile:
Codice inserzione: 1762745558
Rif. Annuncio: 2/1156
Provincia: Firenze
Comune: Campi Bisenzio
Superficie (Mq) : 128 Mq.
Tipo immobile: Case e ville indipendenti
Stato immobile: usato
Piano: Piano terra
Camere: 3
Bagni: 2
Terrazze: 1

Costi:
Prezzo € 299.000


Efficienza energetica:
Classe energetica: G
Riscaldamento: autonomo