home page > Annunci immobiliari in Italia > Toscana > Firenze > Fiesole > Case e ville a schiera in vendita > Scheda immobile

Case e ville a schiera in vendita a Fiesole

COMPILA IL MODULO SOTTOSTANTE PER RICEVERE MAGGIORI INFORMAZIONI







Invia la richiesta ad altre agenzie
Accetto il trattamento dei miei dati



Studio romito di donato cantisani

Via pagnini 27/a
50121 Firenze

0554620186    3291126159    Riferimenti: Donato Cantisani

Fiesole
Prezzo: € 580.000
G
2
163
Ultimo piano
1



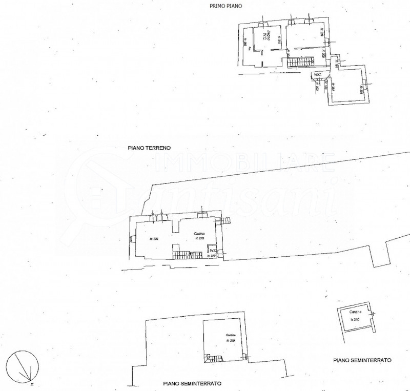
Descrizione:
Fiesole , pressi pian di san bartolo, via di basciano. Immersa nel verde e a pochi minuti da firenze, proponiamo in vendita porzione di colonica con ingresso indipendente su due livelli oltre a due posti auto ed un esclusivo giardino che offre un'esperienza unica grazie alla sua vista panoramica mozzafiato.completamente ristrutturata con finiture eleganti e moderne, la casa si sviluppa su tre livelli: - al piano terra troverete una cucina abitabile accogliente, un'area living luminosa in open space e un pratico servizio igienico; - il primo piano ospita due ampie camere matrimoniali dotate di abbondante luce naturale, accompagnate da due bagni moderni (uno dei quali accessibile direttamente da una delle camere) ed un spazioso vano guardaroba;- nel seminterrato si trova una caratteristica taverna arricchita da un camino perfetto per momenti intimi o serate in compagnia.riscaldamento autonomo a pavimento alimentato a pellet oltre ad aria condizionata caldo/freddo.l'immobile si estende su una superficie utile lorda di 163 mq ed è circondato da un esclusivo giardino privato che misura ben 400 mq. Questo spazio all'aperto rappresenta la cornice ideale per indimenticabili aperitivi al tramonto o pranzi e cene conviviali con familiari e amici. La proprietà include anche due posti auto riservati.la posizione strategica della proprietà consente facili collegamenti sia verso il cuore pulsante di firenze che verso le colline circostanti, offrendo cosù il meglio della vita urbana senza rinunciare alla tranquillità del vivere immersi nella natura.




Caratteristiche immobile:
Codice inserzione: 1763610945
Rif. Annuncio: BSVTT
Provincia: Firenze
Comune: Fiesole
Zona: Pian di San Bartolo  
Superficie (Mq) : 163 Mq.
Tipo immobile: Case e ville a schiera
Stato immobile: ristrutturato
Anno costruzione/ristrutturazione: 1920
Piano: Ultimo piano
Camere: 2
Posti auto scoperti: 1 posto auto

Costi:
Prezzo € 580.000


Efficienza energetica:
Classe energetica: G
Riscaldamento: autonomo a pavimento