0557097710 Riferimenti: Stefano Contessa
Descrizione:
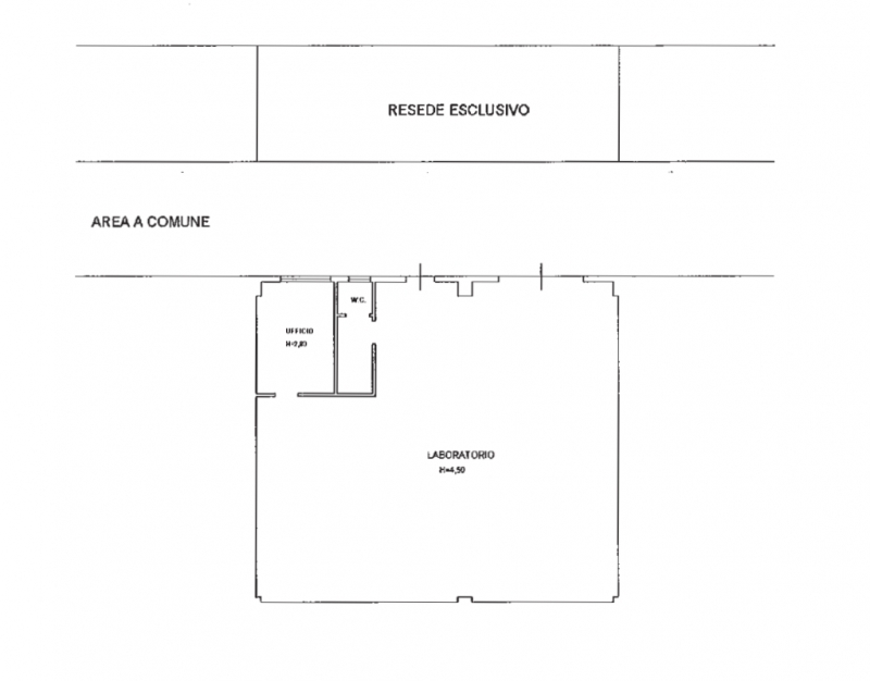
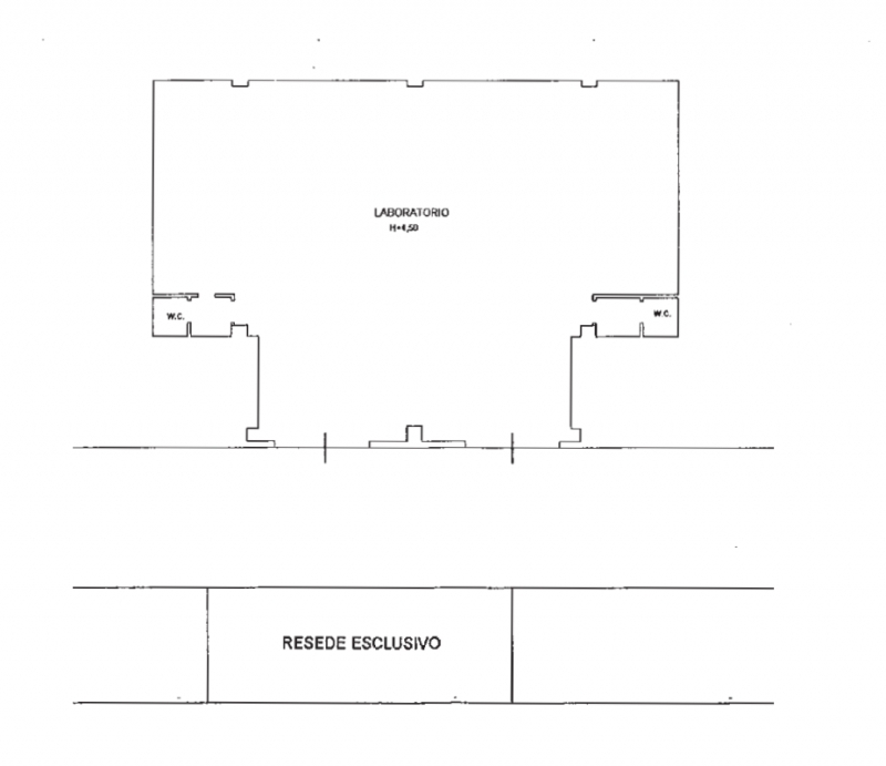
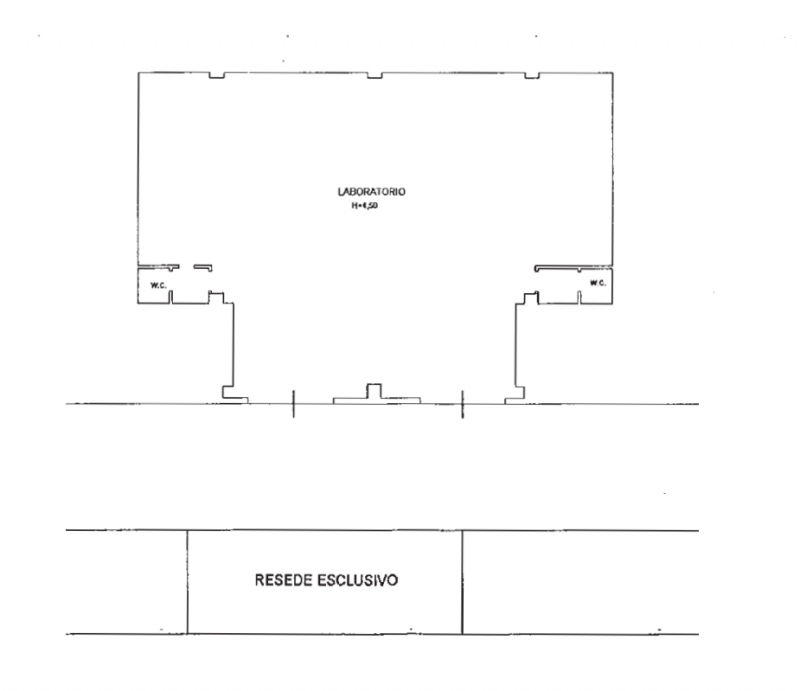
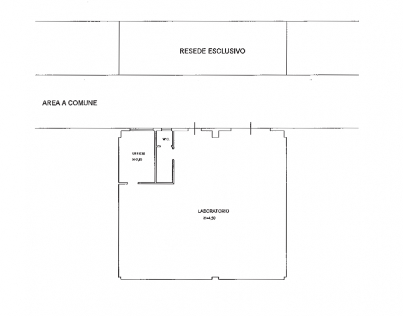
Lastra a signa in zona produttiva, pressi svincolo fipili, disponiamo di due locali artigianali uniti, per un totale di circa 320 mq, composto da due grandi ambienti oltre doppi servizi e ufficio. L'immobile viene consegnato in perfette condizioni manutentive, impianto di riscaldamento autonomo e spazio antistante per carico/scarico.
| Codice inserzione: | 1764042625 |
| Rif. Annuncio: | C10A-073 |
| Provincia: | Firenze |
| Comune: | Lastra a Signa |
| Superficie (Mq) : | 320 Mq. |
| Tipo immobile: | Negozi uffici capannoni |
| Stato immobile: | usato |
| Anno costruzione/ristrutturazione: | 1900 |
| Piano: | Piano terra |
| Camere: | 2 |
| Tipologia giardino : | Condominiale |
| Bagni: | 3 |
| Prezzo | € 3.100 |
| Classe energetica: | G |
| Indice di prestazione energetica (EPgl): | 175 kWh/mc annui |
| Riscaldamento: | autonomo |