home page > Annunci immobiliari in Italia > Toscana > Firenze > Scandicci > appartamenti in vendita > Scheda immobile

Appartamento in vendita a Scandicci

COMPILA IL MODULO SOTTOSTANTE PER RICEVERE MAGGIORI INFORMAZIONI







Invia la richiesta ad altre agenzie
Accetto il trattamento dei miei dati



Intermedia progetti

Via di soffiano 81
50121 Firenze

3892015361    3356627767    Riferimenti: Alessio Ghiribelli

Scandicci
Prezzo: € 270.000
B
2
1
61
Ultimo piano



Descrizione:
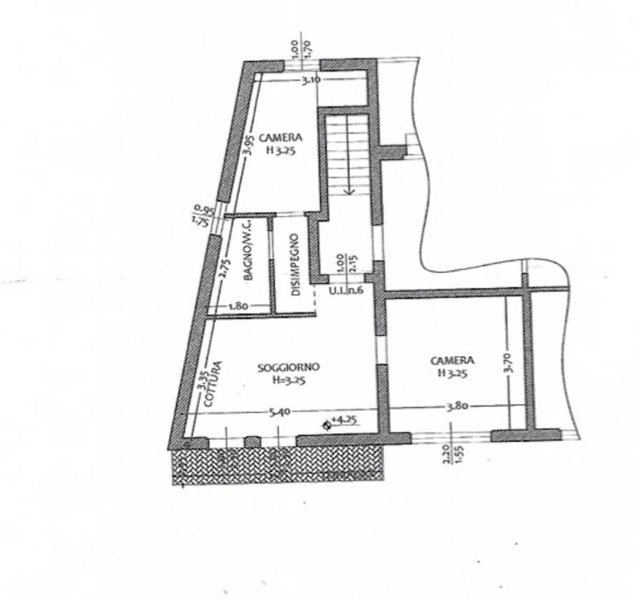
Scandicci, casellina, appartamento indipendente di 61 mq, situato al piano primo di un elegante contesto residenziale. Questa soluzione abitativa, caratterizzata da un'ottima classe energetica b, è perfetta per chi cerca comfort e modernità. appartamento indipendente in vendita in contesto signorile l'immobile è composto da : 3,5 vani, 1 bagno, 1 camera, 1 camera matrimoniale angolo cottura/ soggiorno, riscaldamento autonomo, l'appartamento è composto da una camera da letto luminosa matrimoniale una camera singola e un bagno finemente ristrutturato. La cucina, in un pratico angolo cottura, è funzionale e ben attrezzata. L'immobile è stato recentemente ristrutturato, garantendo cosù un ambiente accogliente e pronto da abitare. tra i punti di forza di questa proposta, troviamo il piccolo condominio di soli 6 appartamenti che offre privacy e autonomia. Inoltre, la proprietà è dotata di un riscaldamento autonomo, assicurando un controllo ottimale dei consumi energetici. completa la proprietà un balcone, ideale per momenti di relax all'aria aperta i. Non perdere l'opportunità di vivere in un contesto signorile e tranquillo, a pochi passi dai principali servizi e collegamenti. Contattaci per maggiori informazioni e per prenotare una visita!ciao ti allego planimetrie altre proposte pannelli fotovoltaici sul tetto volendo mettere batteria di accumologrande risparmio energeticopiu recupero fiscale in 10 anni di oltre 20000eu. Classe energetica: b epi: 56 kwh/m2 anno




Caratteristiche immobile:
Codice inserzione: 1762918265
Rif. Annuncio: 4909RA41679-3015
Provincia: Firenze
Comune: Scandicci
Zona: Casellina  
Superficie (Mq) : 61 Mq.
Tipo immobile: Appartamento
Stato immobile: ristrutturato
Piano: Ultimo piano
Camere: 2
Bagni: 1
Terrazze: 1

Costi:
Prezzo € 270.000


Efficienza energetica:
Classe energetica: B
Indice di prestazione energetica (EPgl): 56 kWh/mq annui
Riscaldamento: autonomo