3892015361 3356627767 Riferimenti: Alessio Ghiribelli
Descrizione:
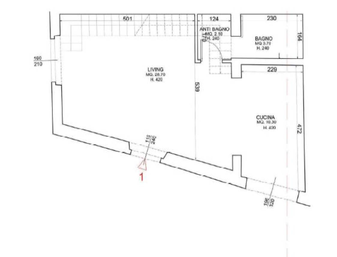
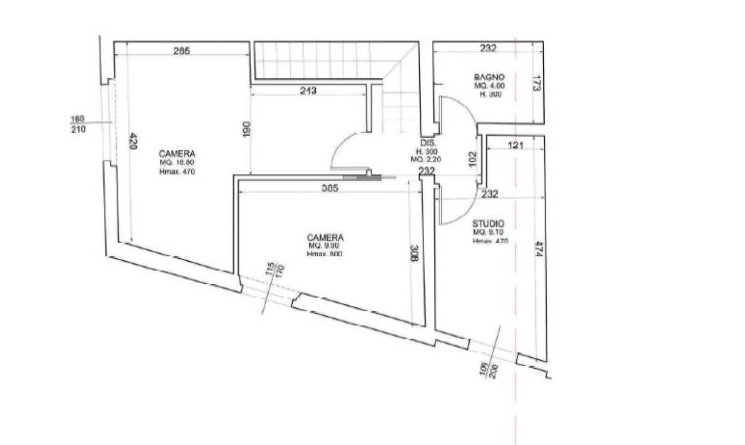
Scandicci in badia a settimo, porzione di colonica con travi a vista luminosa, 140 mq più mansarda 60 mq, inoltre giardino 205 mq ed un posto auto privato. pressi ex convento, tutto completamente ristrutturato con materiali di pregio e ad alta efficienza energetica. Al piano terra: grande zona living luminosa composta da soggiorno con cucina a vista, un bagno. Al primo piano: due camere uno studio e un bagno,. Al secondo piano: mansarda. classe energetica: a epi: 12 kwh/m2 anno
Codice inserzione: | 1759285852 |
Rif. Annuncio: | 4909RA93493 |
Provincia: | Firenze |
Comune: | Scandicci |
Zona: | Badia a Settimo |
Superficie (Mq) : | 200 Mq. |
Tipo immobile: | Case e ville a schiera |
Stato immobile: | nuovo |
Camere: | 3 |
Bagni: | 2 |
Prezzo | € 440.000 |
Classe energetica: | A1 |
Indice di prestazione energetica (EPgl): | 12 kWh/mq annui |
Riscaldamento: | autonomo |