Descrizione:
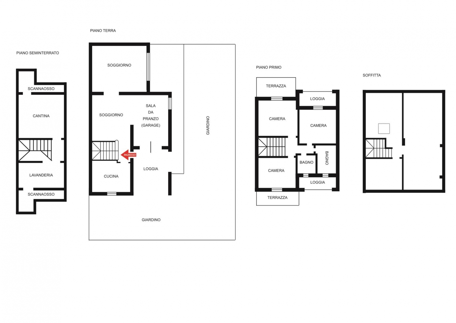
Signa, posizione semi-centrale, in contesto prettamente residenziale, riservato e tranquillo, nonché in prossimità di tutti i principali servizi, si propone in vendita deliziosa villetta angolare di 169 mq, libera su tre lati, con giardino perimetrale, loggia, quattro terrazze e garage di 17 mq catastali. L'immobile, facente parte di un piccolo complesso di villette a schiera di recente costruzione, è disposto su quattro livelli. Il pian terreno si compone di ingresso indipendente dal giardino, ampia sala da pranzo collegata a cucina semi-abitabile e soggiorno. Salendo le scale in corrispondenza dell'ingresso, si raggiunge il piano primo, dove si sviluppa la zona notte. Questa è costituita da camera da letto matrimoniale, due camere da letto singole e doppi servizi finestrati con doccia. Attualmente, la terza camera da letto è adibita a cabina armadio, grazie a una suddivisione dello spazio tramite pareti di cartongesso, facilmente rimovibili per ripristinare, al bisogno, l'assetto originario. Tutte le camere e uno dei due bagni sono collegati alle quattro terrazze presenti, due delle quali coperte. Dal disimpegno notte, salendo un'ulteriore rampa di scale, si raggiunge inoltre un ampio sottotetto, attualmente adibito a studio, perfetto per realizzare una quarta camera da letto. Al piano seminterrato, trovano spazio infine due ulteriori vani, uno adibito a magazzino/deposito e uno utilizzato come lavanderia. Completa la proprietà un garage di 17 mq al piano terra, attualmente adibito a zona living. Fiore all'occhiello della proprietà è il giardino perimetrale, parzialmente piastrellato e perfetto per trascorrere piacevoli momenti in famiglia o con gli amici. L'immobile, in ottime condizioni e impreziosito da finiture di vero pregio, si presta idealmente per famiglie numerose, amanti dell'indipendenza e della privacy, ma che al tempo stesso non vogliano rinunciare alla praticità del contesto urbano. Accessoriato inoltre di impianti di condizionamento, allarme di ultima generazione, tende elettriche e zanzariere. Richiesti euro 650.000, libero in tempi tecnici, vendesi. classe energetica: non indicata