home page > Annunci immobiliari in Italia > Toscana > Grosseto > Follonica > appartamenti in vendita > Scheda immobile

Appartamento in vendita a Follonica

COMPILA IL MODULO SOTTOSTANTE PER RICEVERE MAGGIORI INFORMAZIONI







Invia la richiesta ad altre agenzie
Accetto il trattamento dei miei dati



Agenzia immobiliare la vela

Via roma 97
58022 Follonica (GR)

0566.41777    0566.48735

Follonica
Prezzo: € 280.000
G
2
1
80
1



Descrizione:
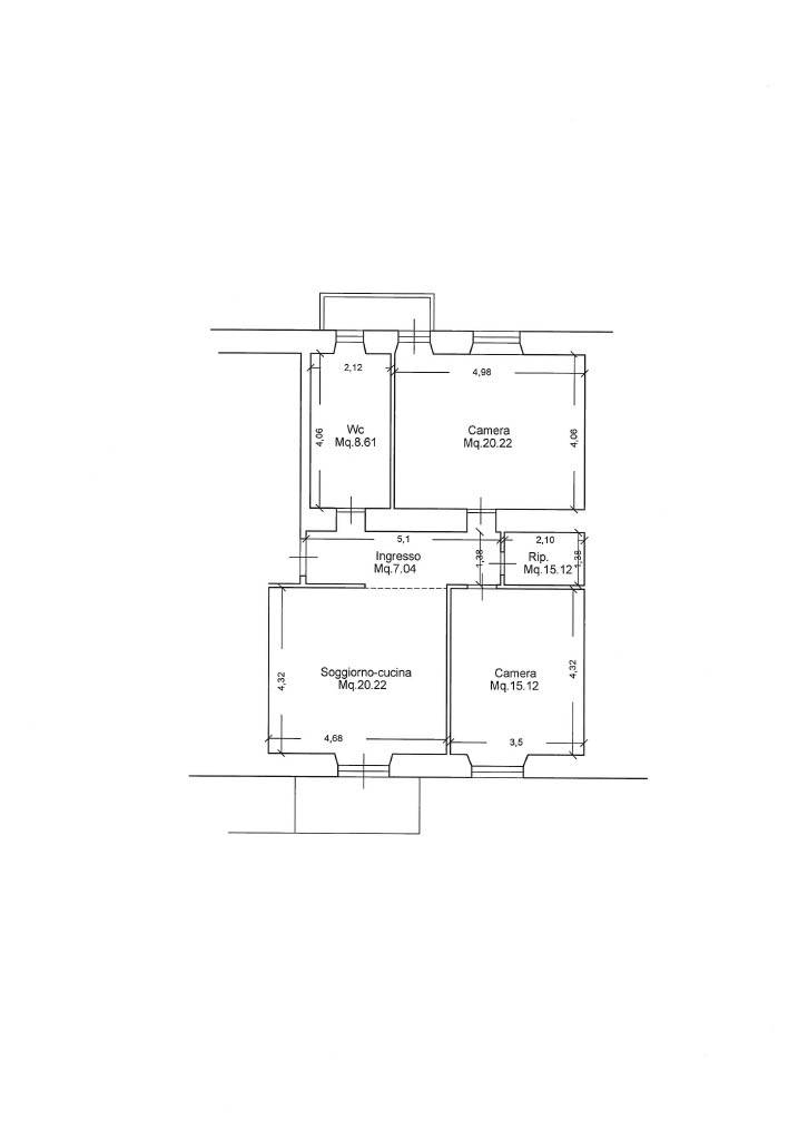
Follonica rif. 101/c fronte mare proponiamo in vendita un ottimo appartamento in corso di ristrutturazione totale in ogni sua parte, ideale sia come abitazione principale che come investimento. L immobile ha la possibilità di essere personalizzato scegliendo tra due diverse soluzioni di cui alleghiamo le planimetrie. 1: ampio soggiorno, cucina, due camere matrimoniali e doppi servizi; 2: soggiorno con angolo cottura, tre camere da letto e due bagni. Dal soggiorno si accede al balcone vista mare ed è presente un altro balcone di servizio sul retro accessibile dalla cucina. Completa la proprietà una cantinetta al piano terra nella corte condominiale dove è presente una comoda rastrelliera coperta per bici. La ristrutturazione totale nello specifico comprende; rifacimento completo impianto elettrico e impianto idraulico, realizzazione dei bagni completi con impianti, rivestimenti e sanitari, infissi in pvc, porte interne, pavimentazione in gres porcellanato, impianto di climatizzazione in tutti gli ambienti, illuminazione moderna con faretti e strip led..prezzo eu. 280.000 classe energetica: g epi: 124,13 kwh/m2 anno




Caratteristiche immobile:
Codice inserzione: 1766377354
Rif. Annuncio: 101/C
Provincia: Grosseto
Comune: Follonica
Superficie (Mq) : 80 Mq.
Tipo immobile: Appartamento
Stato immobile: ristrutturato
Piano: 1
Camere: 2
Bagni: 1

Costi:
Prezzo € 280.000


Efficienza energetica:
Classe energetica: G
Indice di prestazione energetica (EPgl): 124.13 kWh/mq annui
Riscaldamento: autonomo