home page > Annunci immobiliari in Italia > Toscana > Grosseto > Gavorrano > Case e ville a schiera in vendita > Scheda immobile

Case e ville a schiera in vendita a Gavorrano

COMPILA IL MODULO SOTTOSTANTE PER RICEVERE MAGGIORI INFORMAZIONI







Invia la richiesta ad altre agenzie
Accetto il trattamento dei miei dati



Francini servizi immobiliari sas di francini l&a

Via palermo 20/a
58022 Follonica (GR)

0566263050

Gavorrano
Prezzo: € 170.000
G
1
2
60
99



Descrizione:
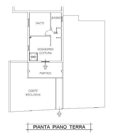
Rif. 917a bagno di gavorrano in tranquillo contesto residenziale si propone in vendita appartamento disposto su due livelli con ingresso indipendente, ampio giardino, porticato e garage collegato. L'unità è composta al piano terra dal soggiorno con lato cottura, disimpegno notte, bagno e camera matrimoniale. Attraverso l'ascensore, unico nel suo genere, si accede al piano interrato dove si trova la taverna attrezzata, il secondo servizio igienico e il garage, attualmente adibito a locale accessorio. Il piano inferiore ha accesso anche diretto esterno. Ottimo per chi ha da ospitare familiari o amici. Riscaldamento autonomo, infissi esterni in legno doppio vetro completi di zanzariere. Ottima soluzione per appoggio mare o residenza. Si vende completo di arredamento. Classe energetica: g epi: 175 kwh/m2 anno




Caratteristiche immobile:
Codice inserzione: 1759720240
Rif. Annuncio: 917
Provincia: Grosseto
Comune: Gavorrano
Zona: Bagno di Gavorrano  
Superficie (Mq) : 60 Mq.
Tipo immobile: Case e ville a schiera
Stato immobile: ristrutturato
Piano: Ultimo piano
Camere: 1
Arredato:
Garage: Singolo
Bagni: 2

Costi:
Prezzo € 170.000


Efficienza energetica:
Classe energetica: G
Indice di prestazione energetica (EPgl): 175 kWh/mq annui
Riscaldamento: autonomo