home page > Annunci immobiliari in Italia > Toscana > Livorno > Cecina > Attività commerciali in affitto > Scheda immobile

Attività commerciali in affitto a Cecina

COMPILA IL MODULO SOTTOSTANTE PER RICEVERE MAGGIORI INFORMAZIONI







Invia la richiesta ad altre agenzie
Accetto il trattamento dei miei dati



Toscanacasa

Piazza carducci 24-25
57023 Cecina (LI)

3457858899    0586630591

Cecina
Prezzo: € 850
1
45
Ultimo piano



Descrizione:
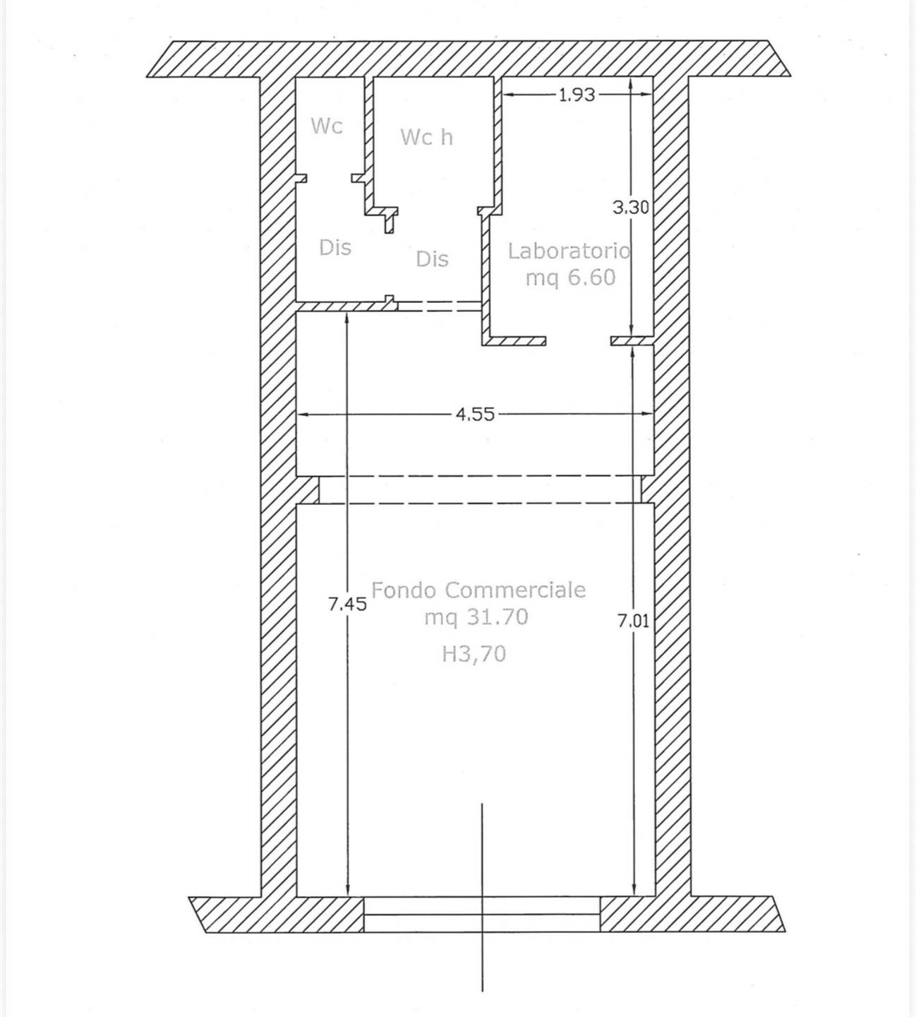
In posizione centrale e di ottima visibilità, proponiamo fondo commerciale di circa 45 mq in perfette condizioni. L'immobile è composto da uno spazio interno principale per il pubblico, un laboratorio o area di lavoro interna, e servizio igienico.dotato di pompa di calore caldo/freddo per il massimo comfort in ogni stagione.il fondo si presta a diverse tipologie di attività, con possibilità di effettuare preparazioni a freddo.disponibile a partire da gennaio.ottima opportunità nel cuore di cecina!per garantire la privacy dei proprietari, l'ndirizzo potrebbe non rispecchiare esattamente l'ubicazione dell'immobile.rif.: a975per info toscana casa alessandro classe energetica: non indicata




Caratteristiche immobile:
Codice inserzione: 1760670712
Rif. Annuncio: A975
Provincia: Livorno
Comune: Cecina
Superficie (Mq) : 45 Mq.
Tipo immobile: Attività commerciali
Piano: Ultimo piano
Bagni: 1

Costi:
Prezzo € 850


Efficienza energetica:
Riscaldamento: autonomo